3-к, Папанинцев, 157 Показать на карте
Центральный район, Центр
Барнаул
Жилой комплекс ''Империал'', представляет собой двухсекционное монолитно-каркасное здание, переменной этажности. Расположенное в самом центре города Барнаула, на улице Папанинцев 155. Проект реализуется застройщиком ООО ''СЗ ''ИСК ''Авангард''. Комплекс включает в себя 2 блок секции 20 и 23 этажа, возведенных на общем стилобате.ЖК ''Империал'' расположен в развитом центре города Барнаула с отличной транспортной доступностью, рядом остановки автобусов и трамваев.Что Вы получаете в своей новой квартире:- входная дверь с шумоизоляцией,- просторные светлые комнаты с панорамными окнами,- свободную планировку без отделки,- стяжка пола с дополнительной шумоизоляцией,- установленные внутренние инженерные коммуникации.Важно, чтобы жители нашего комплекса, даже за пределами своей квартиры оставались защищенными на придомовой территории. В жилом комплексе ''Империал'' - этому способствует, закрытая территория двора, видеокамеры по периметру, а также консьерж в каждой секции. Двухуровневый паркинг, рассчитанный на 183 машино-места, с функцией распознавания номеров, что обеспечивает высокий уровень безопасности. В каждой секции предусмотрены помещения для хранения колясок и велосипедов, а также грузовые и пассажирские лифты для удобства жителей.А также лаунж зоны для резидентов комплекса такие как: 2 детские игровые зоны для деток разного возраста, фитнес зал (доступный только для жителей комплекса) и открытая приватная терраса.В шаговой доступности расположены: крупнейшие ВУЗы края, престижные школы, детские сады. Территория застройки находится в собственности у Застройщика. Реализация квартир осуществляется путем заключения договоров долевого участия в соответствии с ФЗ-214.
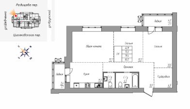
56 м2
4 / 23 этаж
Кирпич - монолит
- Показать контакты
- Добавить в избранное
56 м2
4 / 23 этаж
Кирпич - монолит
9 639 000
170 000 /м2
Новостройка,
III-2028
III-2028
