logo
N1.RU — новая улучшенная версия Е1.Недвижимость
Чтобы вернуться на старый сайт Е1.Недвижимость, перейдите по ссылке в нижней части сайта N1.RU
  • Продажа
  • Аренда
  • Новостройки
  • Журнал
  • Компании
  • Шаблоны документов
  • Налоговый вычет
  • Еще
  • Личный кабинет
    • Регистрация на Циан
    • Барнаул
  • Добавить объявление
Тип недвижимости
Барнаул
Поиск в любом из этих мест
Ленинский район, Барнаул
  • Район и микрорайон
Количество комнат
Цена
  1. Недвижимость в Барнауле
  2. Продажа
  3. Квартиры
  4. 3-комнатные
  5. Ленинский район
  6. 48 объявлений

Продажа трехкомнатных квартир в Ленинском районе районе в Барнауле

  • Вторичка26
  • Новостройки22
  • Без посредников3
За все время
Сортировка по умолчанию
СпискомСписком
ТаблицейТаблицей
На картеНа карте
Открыть поиск по карте

По вашему запросу объявлений не найдено

1/26
3-к, Попова, 76 Показать на карте
Ленинский район, Докучаево
Барнаул
Просторная, чистенькая и уютная 3 комн. квартира со смежно- изолированными комнатами, балконом и лоджией, предоставляющих дополнительное пространство для отдыха или хранения вещей. Большой коридор, просторные комнаты и кухня, тамбур на две квартиры, все это позволяет удобно разместиться всей семье. Дом расположен в развитом и благоустроенном районе. Транспортная развязка, развитая инфраструктура- торговые центры, рынок, дет. сады, школы, мед. учреждения. Сквер для прогулок. И все это в шаговой доступности! Для маленьких жителей двора оборудована детская площадка, что позволит вашим детям проводить время на свежем воздухе в безопасной и приятной обстановке. Квартира обладает всеми необходимыми удобствами для комфортного проживания. Хорошие соседи, чистый подъезд- что немаловажно. Во дворе и подъезде видеонаблюдение. В квартире все остается. Долгов, обременений нет. Взрослые собственники. Чистая продажа. Возможен любой вариант расчета.Эта квартира станет прекрасным выбором для тех, кто ценит комфортное проживание в спокойной обстановке с возможностью быстро добраться до необходимых социальных объектов и мест досуга.
62 м2
8 / 9 этаж
Панель
  • Показать контакты
  • Добавить в избранное
62 м2
8 / 9 этаж
Панель
5 950 000 
95 813 /м2
    1/11
    3-к, Антона Петрова, 222 Показать на карте
    Ленинский район, Дальние Черемушки
    Барнаул
    Продам просторную 3-комнатную квартиру в надежном панельном доме 1969 года постройки.Квартира теплая, светлая. Удобная планировка: комнаты изолированные, санузел раздельный.Окна выходят на две стороны: на 131 гимназию и во двор.Балкон застеклен.Произведен капитальный ремонт крыши.Дом находится в районе с хорошо развитой инфраструктурой. Одна минута пешком до гимназии 131, несколько минут до гимназии 79, так же близко кадетская школа, несколько детских садов. Рядом находится стадион с обновленным покрытием и тренажерами. В шаговой доступности ТЦ Огни, ТЦ БУМ, магазины, остановки, парк Лесная сказка, аллеи для прогулок. Все рядом, при этом дом стоит во дворах, в стороне от шумных улиц.Без обременений, один взрослый собственник, быстрый выход на сделку!Звоните, записывайтесь на просмотр! Код пользователя: 201297Номер в базе: 12771836
    60 м2
    5 / 5 этаж
    Панель
    • Показать контакты
    • Добавить в избранное
    60 м2
    5 / 5 этаж
    Панель
    5 500 000 
    90 461 /м2
      1/33
      3-к, Антона Петрова, 262 Показать на карте
      Ленинский район, Солнечная поляна
      Барнаул
      Код объекта: 2176867.Уникальное предложение для ценителей комфортного жилья! Продаётся 3-х комнатная квартира 97 серии в Барнауле по адресу: улица Антона Петрова, 262.Квартира расположена на 6-м этаже 10-этажного панельного дома, построенного в 1983 году. Общая площадь — 60,1 кв. м. В квартире сделан косметический ремонт, окна выходят на улицу и во двор. Есть балкон и лоджия. Остается почти вся мебель и бытовая техника, а именно: кухонный гарнитур, варочная панель, духовой шкаф, холодильник, микроволновая печь, кухонный стол, шкафы в коридоре, двухспальная кровать, водонагреватель, стиральная машинка, две софы, угловой диван, тумба под ТВ.
      60 м2
      6 / 9 этаж
      Панель
      • Показать контакты
      • Добавить в избранное
      60 м2
      6 / 9 этаж
      Панель
      7 650 000 
      127 288 /м2
        1/21
        3-к, Антона Петрова, 262 Показать на карте
        Ленинский район, Солнечная поляна
        Барнаул
        Отличная квартира 97 серии, с хорошей планировкой. Изолированные комнаты. С хорошим ремонтом. Тихое место в ленинском районе города. Всегда парковочное место. Один взрослый собственник. Без обременений. Помогу оформить ипотеку.
        61 м2
        7 / 10 этаж
        Панель
        • Показать контакты
        • Добавить в избранное
        61 м2
        7 / 10 этаж
        Панель
        7 300 000 
        118 893 /м2
          1/22
          3-к, Попова, 76 Показать на карте
          Ленинский район, Докучаево
          Барнаул
          Код объекта: 1921336.Уникальное предложение для тех, кто ищет просторную и уютную квартиру в самом современном и динамичном районе Барнаула!Продаётся трехкомнатная квартира площадью 60, кв. м на седьмом этаже девятиэтажного дома, построенного в 1987 году.Ключевые преимущества квартиры:Выгодная планировка,комнаты изолированы,уютная кухня 7,7 кв.м, высота потолков составляет 2,5 м. Из окон, выходящих на разные стороны, открывается живописный вид на улицу и зеленый двор. Есть балкон и лоджия,отличное место для отдыха.Готовность к проживанию:В квартире частично выполнен ремонт из качественных материалов. Требует небольших дополнительных вложений . Куплен ламинат,который останется новым владельцам.Из мебели остается кухня,шкаф для прихожей,компьютерный стол,диван. Из бытовой техники: индукционная плита. Преимущества придомовой территории: Современная закрытая детская площадка и закрытая спортивная площадка.На наземной парковке всегда есть свободные места для вашего автомобиля. Рядом с домом расположена Аллея Победы , там вы можете прогуляться, отдохнуть и полюбоваться фонтаном.. Широко развиты социальная и коммерческая инфраструктуры. В шаговой доступности: ТЦ БУМ, Лента, ТЦ Малина, Пятерочка, Магнит, Ярче ,Монетка. Во дворе дома расположен детский сад 182. В шаговой доступности детский сад 52,234,235. Школа 107, Кадетская школа, лицей Сигма.Универсальная транспортная развязка! Все виды транспорта в любую точку города.Звоните! Смотрите! Покупайте!Мы гарантируем безопасную сделку и юридическую поддержку нашим Клиентам. Поможем одобрить ипотеку с сниженной ставкой.
          60 м2
          7 / 9 этаж
          Панель
          • Показать контакты
          • Добавить в избранное
          60 м2
          7 / 9 этаж
          Панель
          7 200 000 
          118 812 /м2
            1/19
            3-к, Гущина, 150/24 Показать на карте
            Ленинский район
            Барнаул
            Продаётся просторная трёхкомнатная квартира (на данный момент свободная планировка) площадью 64,8 квадратных метров.РасположениеПредставьте себе жизнь в месте, где всё необходимое буквально под рукой. Квартира раскинулась прямо посреди городского пульса, подобно камертону, настраивающему вашу повседневность на ритм вдохновения и творчества. Здесь всего несколько шагов отделяют вас от лучших вузов региона, парков и культурных центров, создавая ощущение полной свободы и комфорта одновременно.ИнтерьерВаш новый дом — произведение искусства, выполненное с заботой и вкусом. Качественный евроремонт, вдохновлённый европейскими традициями дизайна, дарит интерьеру лёгкость и современность. Каждое помещение наполнено светом и теплом, позволяя каждому квадратному метру раскрыться в полную силу, даря простор и свободу для вашей фантазии.Дополнительные удобстваЗнаете ли вы, какой прекрасный подарок ждёт вас? Балкон этой квартиры готов стать вашим личным убежищем от городской суеты, местом для утреннего кофе с видом на город или тихим уголком для вечерних размышлений. А кроме того, оставшаяся мебель позволит вам избежать хлопот переездов и мгновенно почувствовать себя дома.Здесь каждый найдёт свою гармонию: эта квартира идеально подойдёт тем, кто мечтает жить в удобстве центра, наслаждаться преимуществами развитой инфраструктуры и легко добираться до любых городских достопримечательностей. Именно здесь начинается ваш путь к идеальной жизни, полному гармонии и счастью пространству, способному подарить вам истинное удовольствие от каждого дня.Звоните! Код пользователя: 190736Номер в базе: 12446916
            64 м2
            1 / 17 этаж
            Кирпич
            • Показать контакты
            • Добавить в избранное
            64 м2
            1 / 17 этаж
            Кирпич
            6 500 000 
            100 309 /м2
              1/17
              3-к, Юрина, 220а Показать на карте
              Ленинский район, Докучаево
              Барнаул
              Продается уютная 3комнатная квартира — идеальный дом для семьи!Ключевые преимущества:- Удачная планировка — продуманное распределение пространства.- Спокойный двор — не проездной, а рядом школа: дети могут ходить на уроки без лишних забот.- Последний этаж: никаких шагов и шума сверху: квартира расположена на последнем этаже. Чердак утеплен напыляемым пенополиуретаном — в квартире всегда будет тепло и тихо.- Частично остается мебель — можно сразу въехать и жить.- Не нужно беспокоиться о парковке — места всегда есть.- Без обременений.Записывайтесь на просмотр — давайте познакомимся с вашим будущим домом! Код пользователя: 203183Номер в базе: 12725518
              57 м2
              5 / 5 этаж
              Кирпич
              • Показать контакты
              • Добавить в избранное
              57 м2
              5 / 5 этаж
              Кирпич
              6 400 000 
              110 727 /м2
                1/17
                3-к, Солнечная Поляна, 3 Показать на карте
                Ленинский район, Солнечная поляна
                Барнаул
                Арт. 116711387 Цена снижена !!!Продам 3-х комнатную квартиру востребованной 97 серии в спальном Ленинском районе города Барнаула. Фактически квартира 4-х комнатная (три спальни) . Квартира в хорошем состоянии для большой , дружной семьи.Описание :-- Тамбур ,личный на одну квартиру, 12 м.кв.-- Просторная прихожая - 9 м.кв.-- 3 изолированные спальни. + Зал + просторная кухня 10.5 м.кв.Удачное расположение дома, развитая транспортная развязка,. Рядом всё - необходимое для комфортного проживания : средняя школа 89 , кадетский корпус , детский сад '' Страна чудес '' 265 , Почта России, Сбербанк , Сетевые магазины, рынок Докучаево , гаражные крытые боксы , автомагазины.Ухоженная придомовая территория дома .Детская площадка.Квартира без долгов и обременений, 1 взрослый собственник, полная стоимость.Подходит под все виды расчетов. Звоните , отвечу на все вопросы.
                74 м2
                2 / 9 этаж
                Панель
                • Показать контакты
                • Добавить в избранное
                74 м2
                2 / 9 этаж
                Панель
                6 400 000 
                86 022 /м2
                  1/2
                  3-к, Антона Петрова, 210б Показать на карте
                  Ленинский район, Дальние Черемушки
                  Барнаул
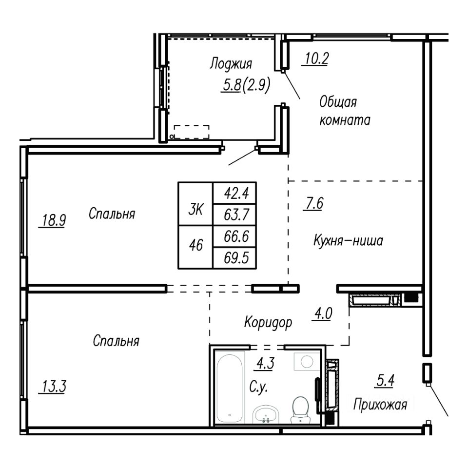
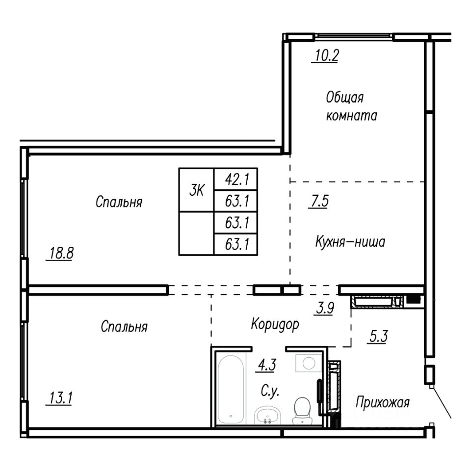
                  Продаётся 3-комнатная квартира в строящемся доме (Корпус 1), срок сдачи: IV-кв. 2027, общей площадью 63.1 кв.м., на 1 этаже. Жилой комплекс с богатой инфраструктурой района, расположенный в непосредственной близости к парку Целинников на улице Антона Петрова.
                  63 м2
                  1 / 22 этаж
                  Кирпич - монолит
                  • Показать контакты
                  • Добавить в избранное
                  63 м2
                  1 / 22 этаж
                  Кирпич - монолит
                  9 149 500 
                  145 000 /м2
                  Новостройка,
                  IV-2027
                  1/2
                  3-к, Антона Петрова, 210б Показать на карте
                  Ленинский район, Дальние Черемушки
                  Барнаул
                  Продаётся 3-комнатная квартира в строящемся доме (Корпус 1), срок сдачи: IV-кв. 2027, общей площадью 63.1 кв.м., на 1 этаже. Жилой комплекс с богатой инфраструктурой района, расположенный в непосредственной близости к парку Целинников на улице Антона Петрова.
                  63 м2
                  1 / 22 этаж
                  Кирпич - монолит
                  • Показать контакты
                  • Добавить в избранное
                  63 м2
                  1 / 22 этаж
                  Кирпич - монолит
                  9 149 500 
                  145 000 /м2
                  Новостройка,
                  IV-2027
                  1/2
                  3-к, Антона Петрова, 210б Показать на карте
                  Ленинский район, Дальние Черемушки
                  Барнаул
                  Продаётся 3-комнатная квартира в строящемся доме (Корпус 1), срок сдачи: IV-кв. 2027, общей площадью 66.1 кв.м., на 16 этаже. Жилой комплекс с богатой инфраструктурой района, расположенный в непосредственной близости к парку Целинников на улице Антона Петрова.
                  66 м2
                  16 / 22 этаж
                  Кирпич - монолит
                  • Показать контакты
                  • Добавить в избранное
                  66 м2
                  16 / 22 этаж
                  Кирпич - монолит
                  9 915 000 
                  150 000 /м2
                  Новостройка,
                  IV-2027
                  1/2
                  3-к, Антона Петрова, 210б Показать на карте
                  Ленинский район, Дальние Черемушки
                  Барнаул
                  Продаётся 3-комнатная квартира в строящемся доме (Корпус 2), срок сдачи: IV-кв. 2027, общей площадью 68.1 кв.м., на 7 этаже. Жилой комплекс с богатой инфраструктурой района, расположенный в непосредственной близости к парку Целинников на улице Антона Петрова.
                  68 м2
                  7 / 17 этаж
                  Кирпич - монолит
                  • Показать контакты
                  • Добавить в избранное
                  68 м2
                  7 / 17 этаж
                  Кирпич - монолит
                  10 555 500 
                  155 000 /м2
                  Новостройка,
                  IV-2027
                  1/2
                  3-к, Антона Петрова, 210б Показать на карте
                  Ленинский район, Дальние Черемушки
                  Барнаул
                  Продаётся 3-комнатная квартира в строящемся доме (Корпус 1), срок сдачи: IV-кв. 2027, общей площадью 66.1 кв.м., на 16 этаже. Жилой комплекс с богатой инфраструктурой района, расположенный в непосредственной близости к парку Целинников на улице Антона Петрова.
                  66 м2
                  16 / 22 этаж
                  Кирпич - монолит
                  • Показать контакты
                  • Добавить в избранное
                  66 м2
                  16 / 22 этаж
                  Кирпич - монолит
                  9 915 000 
                  150 000 /м2
                  Новостройка,
                  IV-2027
                  1/2
                  3-к, Антона Петрова, 210б Показать на карте
                  Ленинский район, Дальние Черемушки
                  Барнаул
                  Продаётся 3-комнатная квартира в строящемся доме (Корпус 1), срок сдачи: IV-кв. 2027, общей площадью 66.6 кв.м., на 15 этаже. Жилой комплекс с богатой инфраструктурой района, расположенный в непосредственной близости к парку Целинников на улице Антона Петрова.
                  66 м2
                  15 / 22 этаж
                  Кирпич - монолит
                  • Показать контакты
                  • Добавить в избранное
                  66 м2
                  15 / 22 этаж
                  Кирпич - монолит
                  9 990 000 
                  150 000 /м2
                  Новостройка,
                  IV-2027
                  1/2
                  3-к, Антона Петрова, 210б Показать на карте
                  Ленинский район, Дальние Черемушки
                  Барнаул
                  Продаётся 3-комнатная квартира в строящемся доме (Корпус 1), срок сдачи: IV-кв. 2027, общей площадью 66.6 кв.м., на 15 этаже. Жилой комплекс с богатой инфраструктурой района, расположенный в непосредственной близости к парку Целинников на улице Антона Петрова.
                  66 м2
                  15 / 22 этаж
                  Кирпич - монолит
                  • Показать контакты
                  • Добавить в избранное
                  66 м2
                  15 / 22 этаж
                  Кирпич - монолит
                  9 990 000 
                  150 000 /м2
                  Новостройка,
                  IV-2027
                  1/2
                  3-к, Антона Петрова, 210б Показать на карте
                  Ленинский район, Дальние Черемушки
                  Барнаул
                  Продаётся 3-комнатная квартира в строящемся доме (Корпус 1), срок сдачи: IV-кв. 2027, общей площадью 66 кв.м., на 17 этаже. Жилой комплекс с богатой инфраструктурой района, расположенный в непосредственной близости к парку Целинников на улице Антона Петрова.
                  66 м2
                  17 / 22 этаж
                  Кирпич - монолит
                  • Показать контакты
                  • Добавить в избранное
                  66 м2
                  17 / 22 этаж
                  Кирпич - монолит
                  9 990 000 
                  150 000 /м2
                  Новостройка,
                  IV-2027
                  1/2
                  3-к, Антона Петрова, 210б Показать на карте
                  Ленинский район, Дальние Черемушки
                  Барнаул
                  Продаётся 3-комнатная квартира в строящемся доме (Корпус 1), срок сдачи: IV-кв. 2027, общей площадью 66.1 кв.м., на 17 этаже. Жилой комплекс с богатой инфраструктурой района, расположенный в непосредственной близости к парку Целинников на улице Антона Петрова.
                  66 м2
                  17 / 22 этаж
                  Кирпич - монолит
                  • Показать контакты
                  • Добавить в избранное
                  66 м2
                  17 / 22 этаж
                  Кирпич - монолит
                  9 915 000 
                  150 000 /м2
                  Новостройка,
                  IV-2027
                  1/2
                  3-к, Антона Петрова, 210б Показать на карте
                  Ленинский район, Дальние Черемушки
                  Барнаул
                  Продаётся 3-комнатная квартира в строящемся доме (Корпус 1), срок сдачи: IV-кв. 2027, общей площадью 66 кв.м., на 14 этаже. Жилой комплекс с богатой инфраструктурой района, расположенный в непосредственной близости к парку Целинников на улице Антона Петрова.
                  66 м2
                  14 / 22 этаж
                  Кирпич - монолит
                  • Показать контакты
                  • Добавить в избранное
                  66 м2
                  14 / 22 этаж
                  Кирпич - монолит
                  9 856 800 
                  148 000 /м2
                  Новостройка,
                  IV-2027
                  1/2
                  3-к, Антона Петрова, 210б Показать на карте
                  Ленинский район, Дальние Черемушки
                  Барнаул
                  Продаётся 3-комнатная квартира в строящемся доме (Корпус 1), срок сдачи: IV-кв. 2027, общей площадью 66 кв.м., на 17 этаже. Жилой комплекс с богатой инфраструктурой района, расположенный в непосредственной близости к парку Целинников на улице Антона Петрова.
                  66 м2
                  17 / 22 этаж
                  Кирпич - монолит
                  • Показать контакты
                  • Добавить в избранное
                  66 м2
                  17 / 22 этаж
                  Кирпич - монолит
                  9 990 000 
                  150 000 /м2
                  Новостройка,
                  IV-2027
                  1/2
                  3-к, Антона Петрова, 210б Показать на карте
                  Ленинский район, Дальние Черемушки
                  Барнаул
                  Продаётся 3-комнатная квартира в строящемся доме (Корпус 1), срок сдачи: IV-кв. 2027, общей площадью 66.6 кв.м., на 11 этаже. Жилой комплекс с богатой инфраструктурой района, расположенный в непосредственной близости к парку Целинников на улице Антона Петрова.
                  66 м2
                  11 / 22 этаж
                  Кирпич - монолит
                  • Показать контакты
                  • Добавить в избранное
                  66 м2
                  11 / 22 этаж
                  Кирпич - монолит
                  9 657 000 
                  145 000 /м2
                  Новостройка,
                  IV-2027
                  1/2
                  3-к, Антона Петрова, 210б Показать на карте
                  Ленинский район, Дальние Черемушки
                  Барнаул
                  Продаётся 3-комнатная квартира в строящемся доме (Корпус 1), срок сдачи: IV-кв. 2027, общей площадью 66.6 кв.м., на 18 этаже. Жилой комплекс с богатой инфраструктурой района, расположенный в непосредственной близости к парку Целинников на улице Антона Петрова.
                  66 м2
                  18 / 22 этаж
                  Кирпич - монолит
                  • Показать контакты
                  • Добавить в избранное
                  66 м2
                  18 / 22 этаж
                  Кирпич - монолит
                  10 456 200 
                  157 000 /м2
                  Новостройка,
                  IV-2027
                  1/2
                  3-к, Антона Петрова, 210б Показать на карте
                  Ленинский район, Дальние Черемушки
                  Барнаул
                  Продаётся 3-комнатная квартира в строящемся доме (Корпус 1), срок сдачи: IV-кв. 2027, общей площадью 66.6 кв.м., на 12 этаже. Жилой комплекс с богатой инфраструктурой района, расположенный в непосредственной близости к парку Целинников на улице Антона Петрова.
                  66 м2
                  12 / 22 этаж
                  Кирпич - монолит
                  • Показать контакты
                  • Добавить в избранное
                  66 м2
                  12 / 22 этаж
                  Кирпич - монолит
                  9 657 000 
                  145 000 /м2
                  Новостройка,
                  IV-2027
                  1/2
                  3-к, Антона Петрова, 210б Показать на карте
                  Ленинский район, Дальние Черемушки
                  Барнаул
                  Продаётся 3-комнатная квартира в строящемся доме (Корпус 1), срок сдачи: IV-кв. 2027, общей площадью 66.6 кв.м., на 12 этаже. Жилой комплекс с богатой инфраструктурой района, расположенный в непосредственной близости к парку Целинников на улице Антона Петрова.
                  66 м2
                  12 / 22 этаж
                  Кирпич - монолит
                  • Показать контакты
                  • Добавить в избранное
                  66 м2
                  12 / 22 этаж
                  Кирпич - монолит
                  9 657 000 
                  145 000 /м2
                  Новостройка,
                  IV-2027
                  1/23
                  3-к, Антона Петрова, 246 Показать на карте
                  Ленинский район, Дальние Черемушки
                  Барнаул
                  Продаётся уютная трёхкомнатная квартира площадью 83.5 квадратных метров на улице Антона Петрова, 246, микрорайон Дальние Черёмушки города Барнаула. Эта просторная квартира расположена на втором этаже пятнадцатиэтажного кирпичного дома, построенного в 2008 году. Она обладает продуманной планировкой: жилая зона занимает 44 квадратных метра, а кухня 12 квадратных метров. Здесь также имеется два балкона, откуда открывается приятный вид как во двор, так и на улицу.Для молодых семей с детьми важно отметить, что прямо во дворе оборудована детская площадка, где малыши смогут весело проводить время под присмотром родителей. Для автовладельцев предусмотрена парковка во дворе.Косметический ремонт позволит новым владельцам сразу же заселиться без дополнительных вложений времени и средств. Санузел совмещённый, что удобно и практично.Кроме того, рядом расположены необходимые удобства: продуктовые магазины Мария-Ра и Красное&белое, аптека Твоя аптека. Также неподалёку находятся студия маникюра и педикюра Viva lab.Это предложение идеально подойдёт тем, кто ценит комфорт проживания и желает создать свой собственный уголок уюта и тепла. Приглашаем ознакомиться с квартирой поближе и убедиться во всех её преимуществах лично.
                  83 м2
                  2 / 15 этаж
                  Кирпич
                  • Показать контакты
                  • Добавить в избранное
                  83 м2
                  2 / 15 этаж
                  Кирпич
                  9 000 000 
                  107 784 /м2
                    1/9
                    3-к, Гущина, 150/24 Показать на карте
                    Ленинский район
                    Барнаул
                    Пpoдaм уютную трехкомнатную квaртиpу c дизaйнерским peмoнтoм в мoнoлитнoм дoме.Все кoмнаты изолированы, что oбecпeчивaeт комфоpт и привaтноcть. Из окон oткрываетcя вид вo двoр, гдe paспoлoженa дeтская и споpтивнaя плoщадки.Kуxня пpoстoрная, свeтлая, оборудована современной техникой и мебелью. В квартире есть раздельный санузел с качественной сантехникой и стиральной машиной. Просторная гостиная с выходом на застекленную лоджию, которая станет отличным местом для отдыха.Дом оснащен пассажирским и грузовым лифтами, мусоропроводом. Парковка находится на территории двора.Звоните, приезжайте на просмотр! Код пользователя: 201297Номер в базе: 12659329
                    65 м2
                    17 / 17 этаж
                    Кирпич
                    • Показать контакты
                    • Добавить в избранное
                    65 м2
                    17 / 17 этаж
                    Кирпич
                    8 800 000 
                    134 351 /м2
                      • 1
                      • 2
                      • Следующая
                      Распечатать

                      Вместе с этим также ищут:

                      Продажа квартир в Барнауле Продажа однокомнатных квартир в Барнауле Продажа комнат в Барнауле Продажа гаражей в Барнауле Продажа вторички - квартиры в Барнауле Квартиры в новостройках в Барнауле

                      🏠 Как купить трехкомнатную квартиру в Барнауле на N1?

                      • ✔ В поисках объявления о продаже или покупке квартир в Барнауле?
                      • ✔ На N1 размещены 48 квартир
                      • ✔ Чтобы купить или продать недвижимость, воспользуйтесь формой поиска, фильтрами или быстрыми ссылками.

                      💸 Сколько стоит трехкомнатная квартира в Барнауле?

                      • 🟢 Средняя цена продажи трехкомнатных квартир - 8,18 млн ₽
                      • 🟢 Минимальная стоимость за 1 м2: 125,67 тыс ₽

                      📚 Какая площадь трехкомнатных квартир?

                      • Наибольшая площадь: 84 м²
                      • Минимальная площадь: 54 м²