1-к, Западная 1-я, 55а Показать на карте
Октябрьский район, Поток
Барнаул
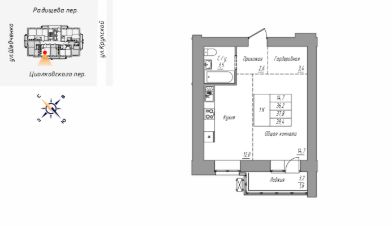
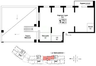
Продаётся студия в строящемся доме (Дом 1), срок сдачи: III-кв. 2026, общей площадью 52.96 кв.м., на 4 этаже. На улице Западная 1-я, 55А в городе Барнауле, располагается восьмиэтажный жилой дом с подземной автостоянкой. Фасады дома оформлены сочетанием разнообразных материалов: стекло, силикатный и бетонный кирпич. Горизонтальные линии и цвета на фасадах помогают определить этажность и масштаб здания. Использование больших форм выносных стеклянных лоджий и яркой палитры цветов придает зданию интересный внешний вид, сочетаясь гармонично с окружающей застройкой. Подвал дома содержит 34 машино-места, 3 нежилых помещения и 18 кладовых. Подвальный этаж имеет два отдельных входа с улицы и рампу для въезда на автостоянку, оборудованную автоматическими воротами. Дом предлагает разнообразные одно-, двух- и трехкомнатные квартиры, а также квартиры-студии, всего 79 штук. Планировка предусматривает по 9 квартир на первом этаже и по 10 квартир на остальных этажах. Лоджии оборудованы ограждениями высотой не менее 1,2 метра. Подземная автостоянка полностью расположена под внутренним двором. На кровле предусмотрены проезды, пешеходные тротуары, зеленые насаждения, открытая стоянка для автомобилей и игровые площадки. Высота помещения автостоянки варьируется от 2,49 м до 2,84 м, а высота подвального этажа составляет 3,15 м. Высота жилых этажей с первого по восьмой - 2,9 метра.
52 м2
4 / 8 этаж
Кирпич - монолит
- Показать контакты
- Добавить в избранное
52 м2
4 / 8 этаж
Кирпич - монолит
7 043 680
133 000 /м2
Новостройка,
III-2026
III-2026
