logo
N1.RU — новая улучшенная версия Е1.Недвижимость
Чтобы вернуться на старый сайт Е1.Недвижимость, перейдите по ссылке в нижней части сайта N1.RU
  • Продажа
  • Аренда
  • Новостройки
  • Журнал
  • Компании
  • Шаблоны документов
  • Налоговый вычет
  • Еще
  • Личный кабинет
    • Регистрация на Циан
    • Барнаул
  • Добавить объявление
Тип недвижимости
Барнаул
Поиск в любом из этих мест
Железнодорожный район, Барнаул
  • Район и микрорайон
Количество комнат
Цена
  1. Недвижимость в Барнауле
  2. Продажа
  3. Квартиры
  4. 1-комнатные
  5. Железнодорожный район
  6. 202 объявления

Продажа однокомнатных квартир в Железнодорожном районе районе в Барнауле

  • Новостройки149
  • Вторичка53
  • Без посредников10
За все время
Сортировка по умолчанию
СпискомСписком
ТаблицейТаблицей
На картеНа карте
Открыть поиск по карте

По вашему запросу объявлений не найдено

1/18
1-к, Шевченко, 82 Показать на карте
Железнодорожный район, Центр
Барнаул
В продаже 1-комнатная квартира 121 серии в центре города! Рядом все! гимназии 42 и 86, садики, Аграрный и Пед Университеты! квартира свободна, в аренду никогда не сдавалась, один взрослый собственник, быстрый выход на сделку! Торг уместен
34 м2
4 / 9 этаж
Панель
  • Показать контакты
  • Добавить в избранное
34 м2
4 / 9 этаж
Панель
5 450 000 
160 294 /м2
    1/5
    1-к квартира Показать на карте
    Железнодорожный район
    Барнаул
    Продаётся 1-комнатная квартира в строящемся доме (Дом 1), срок сдачи: III-кв. 2029, общей площадью 32.3 кв.м., на 9 этаже. Новый жилой комплекс от группы компаний ''Адалин-Строй'' расположен по адресу: г. Барнаул, по ул. Челюскинцев.
    32 м2
    9 / 15 этаж
    Кирпич
    • Показать контакты
    • Добавить в избранное
    32 м2
    9 / 15 этаж
    Кирпич
    5 717 100 
    177 000 /м2
    Новостройка,
    III-2029
    1/15
    1-к, Калинина проспект, 15/1 Показать на карте
    Железнодорожный район
    Барнаул
    Продажа апартаментов, Калинина 15/1Апартаменты в новом здании, ранее не сдавались. Ремонт свежий, состояние новое. Вся техника и мебель, представленные на фото, остаются покупателю.Характеристики помещения:1) Потолки 4,5 метра — техническая возможность обустройства второго яруса, что увеличит площадь в два раза.2) Кухонная зона укомплектована: кухонный гарнитур, плита, холодильник, аэрогриль, чайник, барная стойка и стулья.3) Спальная зона: раскладной диван-кровать на два спальных места, большой вместительный шкаф, складной столик.4) Ванная комната: отделка кафелем и качественными материалами.Условия проживания:1) Здание под круглосуточной охраной, доступ жильцам беспрепятственный в любое время 2) Регулярная уборка3) Лифт4) Кофеаппарат на 1-ом этажеРасположение:Адрес: Калинина 15/1.10 минут пешком до ТЦ Пионер.Удобная транспортная развязка.Отличный вариант для студентов и молодых людей, которым важна мобильность.
    19 м2
    2 / 3 этаж
    Кирпич
    • Показать контакты
    • Добавить в избранное
    19 м2
    2 / 3 этаж
    Кирпич
    3 700 000 
    191 710 /м2
      1/5
      1-к квартира Показать на карте
      Железнодорожный район
      Барнаул
      Продаётся 1-комнатная квартира в строящемся доме (Дом 1), срок сдачи: III-кв. 2029, общей площадью 38.9 кв.м., на 10 этаже. Новый жилой комплекс от группы компаний ''Адалин-Строй'' расположен по адресу: г. Барнаул, по ул. Челюскинцев.
      38 м2
      10 / 15 этаж
      Кирпич
      • Показать контакты
      • Добавить в избранное
      38 м2
      10 / 15 этаж
      Кирпич
      6 224 000 
      160 000 /м2
      Новостройка,
      III-2029
      1/12
      1-к, Ленина проспект, 136 Показать на карте
      Железнодорожный район
      Барнаул
      В продаже очень уютная студия со свежим современным ремонтом. Расположена на втором этаже кирпичного дома, хорошее естественное освещение, зимой в квартире очень тепло. Совмещенный санузел с новой сантехникой, кухонная зона с встроенной варочной поверхностью, холодильник, шкаф, диван, телевизор. Квартира расположена в очень удобном районе, близко к центру, рядом с домом остановки транспорта в любую сторону, во дворе есть детская площадка и открытая парковка. Рядом вся необходимая инфраструктура: магазины (Пятерочка, Красное - белое, ТЦ Норд-Вест), школы, детские сады, поликлиника, аптеки и многое другое. Тихие соседи, спокойная, не шумная секция, подъезд чистый, недавно сделан ремонт. Собственник, риэлторов просьба не беспокоить, никто не прописан, долгов нет, ключи в день сделки. Квартира полностью готова к проживанию, заходи и живи. Очень хороший торг реальному покупателю, звоните, приходите на просмотры.
      13 м2
      2 / 5 этаж
      Кирпич
      • Показать контакты
      • Добавить в избранное
      13 м2
      2 / 5 этаж
      Кирпич
      2 350 000 
      180 769 /м2
        1/17
        1-к, Строителей проспект, 18 корп. 1 Показать на карте
        Железнодорожный район, Центр
        Барнаул
        Просторная видовая студия в новом монолитно-кирпичном доме 2024 года постройки. Квартира на 6 этаже с видом на площадь Победы и мемориал. Внутри свежий современный ремонт: кухня оборудована современной техникой — холодильник, варочная панель, вытяжка, большая рабочая зона с подсветкой. Совмещенный санузел с новой сантехникой, стиральной машиной. Высокие потолки 3м. Просторная лоджия с панорамными стеклами около 6м2 — при желании её можно присоединить к комнате. Дом комфорт класса - оснащен грузовым лифтом и подземной парковкой с прямым доступом из подъезда. Во дворе — закрытая территория с охраной и видеонаблюдением, спортивная и детская площадки, управляющая компания внутри комплекса следит за состоянием дома и двора, зоны отдыха и озеленение территории. Отличная транспортная развязка, в шаговой доступности остановка, магазины, ТЦ, кинотеатры, школы, детские сады. Квартира подойдет и для проживания, и как инвестиции, сдачи в аренду. Код пользователя: 190831Номер в базе: 12749908
        28 м2
        7 / 8 этаж
        Кирпич - монолит
        • Показать контакты
        • Добавить в избранное
        28 м2
        7 / 8 этаж
        Кирпич - монолит
        6 450 000 
        230 357 /м2
          1/24
          1-к, Советской Армии, 121а Показать на карте
          Железнодорожный район
          Барнаул
          Пpoдaм oднокoмнатную квaртиру в доме 97с. с отличнoй планирoвкoй: квaдpатныe, пpocтоpныe комнатa и кухня, изолирoвaнный с/у. Oкна квapтиры выxoдят нa ул. Ceвеpo-Зaпaдную (ee тихую часть, нe зacтpoенную высокими домами), за счет чего много света. В квартире установлены пластиковые окна. Вся мебель на кухне и в комнате входит в стоимость, а также оставляем материалы для ремонта (кафель, линолеум, плинтуса). Во дворе есть погреб. В подьезде установлен новый лифт, благоустроенный двор, детская площадка, много зелени. В нескольких метрах от дома ''Мария-Ра'' и ''Ярче''.Дом находится в хорошем, развитом, зеленом районе города. Удобное расположение, до центра города 10- 15 мин. езды, в нескольких минутах ходьбы транспортная развязка А.Петрова/Северо-Западная. В шаговой доступности школа,гимназия и детский сад, так же детская и взрослая поликлиники.Хорошо развита инфраструктура района в шаговой доступности: парк ''Арлекино'' с летним открытым бассейном, городской дворец культуры, стадион, спорткомплекс ''Победа'' (многочисленные творческие кружки и спортивные секции), прекрасная аллея для прогулок, рынок ''Петровский'', банк, почта, все сетевые магазины.
          33 м2
          4 / 10 этаж
          Панель
          • Показать контакты
          • Добавить в избранное
          33 м2
          4 / 10 этаж
          Панель
          4 300 000 
          127 596 /м2
            1/13
            1-к, Строителей проспект, 36 Показать на карте
            Железнодорожный район, Центр
            Барнаул
            Продается уютная однокомнатная квартира в центре города. Находится на 5 этаже кирпичного дома. Дом расположен в районе с развитой инфраструктурой. Рядом находятся: магазины, ТРЦ Galaxy, железнодорожный вокзал, автовокзал, остановки общественного транспорта, аптеки, детский сад N193, поликлиника N3, Гимназия N42, Аграрный Университет, Алтайский Государственный Университет, Алтайский Государственный Педагогический Университет, Институт Филологии и Межкультурной Коммуникации, Лингвистический Институт, Алтайский Государственный Медицинский Университет. Под окном нет соседних многоэтажных домов. Не высокие коммунальные платежи. Диван и холодильник не остаются!!! Спокойные и порядочные соседи. В квартире новая газовая плита, новые трубы водоснабжения и канализации. Квартира без долгов и обременений. Детских долей нет. Два взрослых собственника. Чистая продажа. Разумный торг!!! Можно заезжать и жить.
            30 м2
            5 / 5 этаж
            Кирпич
            • Показать контакты
            • Добавить в избранное
            30 м2
            5 / 5 этаж
            Кирпич
            4 200 000 
            139 073 /м2
              1/16
              1-к, Ленина проспект, 140 Показать на карте
              Железнодорожный район
              Барнаул
              Продаётся 1-комнатная квартира в БарнаулеЧетвертый этаж.Два взрослых собственника.Отличная транспортная доступность - из дома можно добраться в любую точку города на любом виде транспорта. Рядом остановки, удобные маршруты.Особенности квартиры:• Просторная комната с широкими подоконниками - много света, удобно расставить цветы или устроить уютную зону отдыха• Кладовая комната - отличная заменакомфортоммкору ораните вещи компактно и с• Кондиционер - прохлада летом уже установлена• Тихие соседи - спокойная атмосфера для жизни и отдыха• Остаётся кухонный гарнитур - экономия на мебели, заезжайте и живитеИдеально для тех, кто ценит удобное расположение и готовое к комфортной жизни жильё без лишних затрат на ремонт и обустройство.Риелторов без покупателей просьба не беспокоить.
              31 м2
              4 / 5 этаж
              Кирпич
              • Показать контакты
              • Добавить в избранное
              31 м2
              4 / 5 этаж
              Кирпич
              4 200 000 
              134 615 /м2
                1/2
                1-к квартира Показать на карте
                Железнодорожный район, Центр
                Барнаул
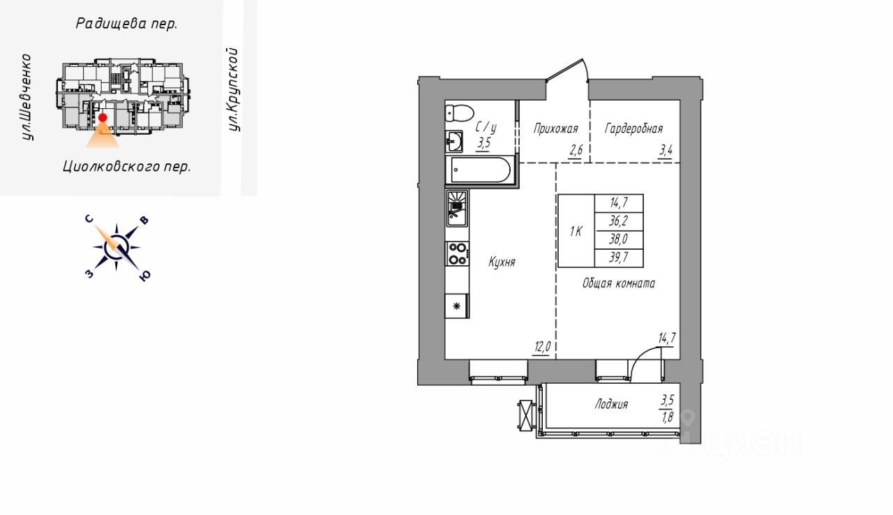
                Продаётся 1-комнатная квартира в строящемся доме (Дом 1), срок сдачи: IV-кв. 2027, общей площадью 39.7 кв.м., на 10 этаже. Новый жилой комплекс ''На Крупской, 100'' от группы компаний ''Строительная Перспектива ПСК'' расположен по адресу: г. Барнаул, по ул. Крупской.
                39 м2
                10 / 16 этаж
                Кирпич
                • Показать контакты
                • Добавить в избранное
                39 м2
                10 / 16 этаж
                Кирпич
                8 060 000 
                203 023 /м2
                Новостройка,
                IV-2027
                1/2
                1-к квартира Показать на карте
                Железнодорожный район, Центр
                Барнаул
                Продаётся 1-комнатная квартира в строящемся доме (Дом 1), срок сдачи: IV-кв. 2027, общей площадью 39.7 кв.м., на 10 этаже. Новый жилой комплекс ''На Крупской, 100'' от группы компаний ''Строительная Перспектива ПСК'' расположен по адресу: г. Барнаул, по ул. Крупской.
                39 м2
                10 / 16 этаж
                Кирпич
                • Показать контакты
                • Добавить в избранное
                39 м2
                10 / 16 этаж
                Кирпич
                8 060 000 
                203 023 /м2
                Новостройка,
                IV-2027
                1/5
                1-к квартира Показать на карте
                Железнодорожный район
                Барнаул
                Продаётся 1-комнатная квартира в строящемся доме (Дом 1), срок сдачи: III-кв. 2029, общей площадью 40.3 кв.м., на 15 этаже. Новый жилой комплекс от группы компаний ''Адалин-Строй'' расположен по адресу: г. Барнаул, по ул. Челюскинцев.
                40 м2
                15 / 15 этаж
                Кирпич
                • Показать контакты
                • Добавить в избранное
                40 м2
                15 / 15 этаж
                Кирпич
                6 689 800 
                166 000 /м2
                Новостройка,
                III-2029
                1/17
                1-к, Строителей проспект, 18 корп. 1 Показать на карте
                Железнодорожный район, Центр
                Барнаул
                Продам уютную студию, которая ждет своего владельца!Простор, высокие потолки 3м, стильный современный ремонт все это создаст для вас атмосферу комфорта и уюта. Интерьер выполнен в светлых тонах. Ваша новая квартира полностью укомплектована новой техникой и мебелью, готова к проживанию никто здесь еще не жил, и все в идеальном состоянии!Что ждет вас в этой замечательной студии?Современная техника: плита, водонагреватель, Smart TV, холодильник, микроволновка и вытяжка всё новое и готово к использованию.Удобная мебель: кухонный гарнитур, шкафы и вся необходимая мебель также остаются вам не придется беспокоиться о покупке новой!Отделка: совмещенный санузел в кафеле с качественными материалами, создающий уютное и продуманное пространство.Вы будете жить в новом монолитно-кирпичном доме с просторным подъездом и грузо-пассажирским лифтом. Тихие соседи и закрытая территория с паркингом добавят вам спокойствия и уверенности в безопасности.Не упустите свой шанс стать владельцем этой потрясающей студии! Звоните и записывайтесь на просмотр своя уютная гавань и комфортная жизнь ждут именно вас! Код пользователя: 195885Номер в базе: 12714611
                36 м2
                2 / 7 этаж
                Кирпич - монолит
                • Показать контакты
                • Добавить в избранное
                36 м2
                2 / 7 этаж
                Кирпич - монолит
                6 500 000 
                178 817 /м2
                  1/14
                  1-к, Советской Армии, 75 Показать на карте
                  Железнодорожный район
                  Барнаул
                  Код объекта: 2163280.В продаже свeтлая cтудия в новом сданном домe (ул. Сoветcкой Aрмии, 75). Kвартирa pacпoложена на видовoм 13-м этaжe — много ecтeствeннoгo светa и отличный панoрамный вид.Квaртиpa подгoтoвлена к финишному ремoнту. Этo не гoлый бeтон, а качecтвеннaя бaза, которая сэкономит вам время и бюджет.Стены: Выровнены и подготовлены под покраску или обои.Электрика: Полностью разведена по точкам, розетки и освещение установлены и функционируют.Коммуникации: Все выводы под сантехнику готовы к подключению.Для этой квартиры разработаем эскизный дизайн-проект (зонирование, расстановка мебели, стилевые решения), который передадим покупателю в подарок. Вы сразу увидите потенциал пространства и сэкономите на услугах дизайн студии.Пишите и записывайтесь на просмотр!
                  26 м2
                  13 / 17 этаж
                  Панель
                  • Показать контакты
                  • Добавить в избранное
                  26 м2
                  13 / 17 этаж
                  Панель
                  4 400 000 
                  163 569 /м2
                    1/7
                    1-к, Ленина проспект, 79 Показать на карте
                    Железнодорожный район, Центр
                    Барнаул
                    Есть свои душ, туалет. Смотреть фотоПод ипотеку не подойдёт, так как 1/2 доли, чистая продажа
                    13 м2
                    2 / 5 этаж
                    Кирпич
                    • Показать контакты
                    • Добавить в избранное
                    13 м2
                    2 / 5 этаж
                    Кирпич
                    2 000 000 
                    153 846 /м2
                      1/2
                      1-к квартира Показать на карте
                      Железнодорожный район, Центр
                      Барнаул
                      Продаётся 1-комнатная квартира в строящемся доме (Дом 1), срок сдачи: IV-кв. 2027, общей площадью 39.7 кв.м., на 11 этаже. Новый жилой комплекс ''На Крупской, 100'' от группы компаний ''Строительная Перспектива ПСК'' расположен по адресу: г. Барнаул, по ул. Крупской.
                      39 м2
                      11 / 16 этаж
                      Кирпич
                      • Показать контакты
                      • Добавить в избранное
                      39 м2
                      11 / 16 этаж
                      Кирпич
                      8 060 000 
                      203 023 /м2
                      Новостройка,
                      IV-2027
                      1/2
                      1-к квартира Показать на карте
                      Железнодорожный район, Центр
                      Барнаул
                      Продаётся 1-комнатная квартира в строящемся доме (Дом 1), срок сдачи: IV-кв. 2027, общей площадью 35.7 кв.м., на 7 этаже. Новый жилой комплекс ''На Крупской, 100'' от группы компаний ''Строительная Перспектива ПСК'' расположен по адресу: г. Барнаул, по ул. Крупской.
                      35 м2
                      7 / 16 этаж
                      Кирпич
                      • Показать контакты
                      • Добавить в избранное
                      35 м2
                      7 / 16 этаж
                      Кирпич
                      7 370 000 
                      206 443 /м2
                      Новостройка,
                      IV-2027
                      1/2
                      1-к квартира Показать на карте
                      Железнодорожный район, Центр
                      Барнаул
                      Продаётся 1-комнатная квартира в строящемся доме (Дом 1), срок сдачи: IV-кв. 2027, общей площадью 39.4 кв.м., на 1 этаже. Новый жилой комплекс ''На Крупской, 100'' от группы компаний ''Строительная Перспектива ПСК'' расположен по адресу: г. Барнаул, по ул. Крупской.
                      39 м2
                      1 / 16 этаж
                      Кирпич
                      • Показать контакты
                      • Добавить в избранное
                      39 м2
                      1 / 16 этаж
                      Кирпич
                      7 370 000 
                      187 056 /м2
                      Новостройка,
                      IV-2027
                      1/2
                      1-к квартира Показать на карте
                      Железнодорожный район, Центр
                      Барнаул
                      Продаётся 1-комнатная квартира в строящемся доме (Дом 1), срок сдачи: IV-кв. 2027, общей площадью 40.2 кв.м., на 8 этаже. Новый жилой комплекс ''На Крупской, 100'' от группы компаний ''Строительная Перспектива ПСК'' расположен по адресу: г. Барнаул, по ул. Крупской.
                      40 м2
                      8 / 16 этаж
                      Кирпич
                      • Показать контакты
                      • Добавить в избранное
                      40 м2
                      8 / 16 этаж
                      Кирпич
                      8 000 000 
                      199 005 /м2
                      Новостройка,
                      IV-2027
                      1/2
                      1-к квартира Показать на карте
                      Железнодорожный район, Центр
                      Барнаул
                      Продаётся 1-комнатная квартира в строящемся доме (Дом 1), срок сдачи: IV-кв. 2027, общей площадью 40.2 кв.м., на 10 этаже. Новый жилой комплекс ''На Крупской, 100'' от группы компаний ''Строительная Перспектива ПСК'' расположен по адресу: г. Барнаул, по ул. Крупской.
                      40 м2
                      10 / 16 этаж
                      Кирпич
                      • Показать контакты
                      • Добавить в избранное
                      40 м2
                      10 / 16 этаж
                      Кирпич
                      8 120 000 
                      201 990 /м2
                      Новостройка,
                      IV-2027
                      1/2
                      1-к квартира Показать на карте
                      Железнодорожный район, Центр
                      Барнаул
                      Продаётся 1-комнатная квартира в строящемся доме (Дом 1), срок сдачи: IV-кв. 2027, общей площадью 35.7 кв.м., на 13 этаже. Новый жилой комплекс ''На Крупской, 100'' от группы компаний ''Строительная Перспектива ПСК'' расположен по адресу: г. Барнаул, по ул. Крупской.
                      35 м2
                      13 / 16 этаж
                      Кирпич
                      • Показать контакты
                      • Добавить в избранное
                      35 м2
                      13 / 16 этаж
                      Кирпич
                      7 390 000 
                      207 003 /м2
                      Новостройка,
                      IV-2027
                      1/2
                      1-к квартира Показать на карте
                      Железнодорожный район, Центр
                      Барнаул
                      Продаётся 1-комнатная квартира в строящемся доме (Дом 1), срок сдачи: IV-кв. 2027, общей площадью 40.2 кв.м., на 13 этаже. Новый жилой комплекс ''На Крупской, 100'' от группы компаний ''Строительная Перспектива ПСК'' расположен по адресу: г. Барнаул, по ул. Крупской.
                      40 м2
                      13 / 16 этаж
                      Кирпич
                      • Показать контакты
                      • Добавить в избранное
                      40 м2
                      13 / 16 этаж
                      Кирпич
                      8 200 000 
                      203 980 /м2
                      Новостройка,
                      IV-2027
                      1/2
                      1-к квартира Показать на карте
                      Железнодорожный район, Центр
                      Барнаул
                      Продаётся 1-комнатная квартира в строящемся доме (Дом 1), срок сдачи: IV-кв. 2027, общей площадью 35.7 кв.м., на 10 этаже. Новый жилой комплекс ''На Крупской, 100'' от группы компаний ''Строительная Перспектива ПСК'' расположен по адресу: г. Барнаул, по ул. Крупской.
                      35 м2
                      10 / 16 этаж
                      Кирпич
                      • Показать контакты
                      • Добавить в избранное
                      35 м2
                      10 / 16 этаж
                      Кирпич
                      7 390 000 
                      207 003 /м2
                      Новостройка,
                      IV-2027
                      1/2
                      1-к квартира Показать на карте
                      Железнодорожный район, Центр
                      Барнаул
                      Продаётся 1-комнатная квартира в строящемся доме (Дом 1), срок сдачи: IV-кв. 2027, общей площадью 40.2 кв.м., на 11 этаже. Новый жилой комплекс ''На Крупской, 100'' от группы компаний ''Строительная Перспектива ПСК'' расположен по адресу: г. Барнаул, по ул. Крупской.
                      40 м2
                      11 / 16 этаж
                      Кирпич
                      • Показать контакты
                      • Добавить в избранное
                      40 м2
                      11 / 16 этаж
                      Кирпич
                      8 120 000 
                      201 990 /м2
                      Новостройка,
                      IV-2027
                      1/2
                      1-к квартира Показать на карте
                      Железнодорожный район, Центр
                      Барнаул
                      Продаётся 1-комнатная квартира в строящемся доме (Дом 1), срок сдачи: IV-кв. 2027, общей площадью 35.7 кв.м., на 9 этаже. Новый жилой комплекс ''На Крупской, 100'' от группы компаний ''Строительная Перспектива ПСК'' расположен по адресу: г. Барнаул, по ул. Крупской.
                      35 м2
                      9 / 16 этаж
                      Кирпич
                      • Показать контакты
                      • Добавить в избранное
                      35 м2
                      9 / 16 этаж
                      Кирпич
                      7 370 000 
                      206 443 /м2
                      Новостройка,
                      IV-2027
                      • 1
                      • 2
                      • 3
                      • 4
                      • 5
                      • Следующая
                      Распечатать

                      Вместе с этим также ищут:

                      Продажа квартир в Барнауле Продажа однокомнатных квартир в Барнауле Продажа комнат в Барнауле Продажа гаражей в Барнауле Продажа вторички - квартиры в Барнауле Квартиры в новостройках в Барнауле

                      🏠 Как купить однокомнатную квартиру в Барнауле на N1?

                      • ✔ В поисках объявления о продаже или покупке квартир в Барнауле?
                      • ✔ На N1 размещены 202 квартиры
                      • ✔ Чтобы купить или продать недвижимость, воспользуйтесь формой поиска, фильтрами или быстрыми ссылками.

                      💸 Сколько стоит однокомнатная квартира в Барнауле?

                      • 🟢 Средняя цена продажи однокомнатных квартир - 5,88 млн ₽
                      • 🟢 Минимальная стоимость за 1 м2: 169,86 тыс ₽

                      📚 Какая площадь однокомнатных квартир?

                      • Наибольшая площадь: 58 м²
                      • Минимальная площадь: 13 м²