3-к, Солнечная Поляна, 7 Показать на карте
Ленинский район, Солнечная поляна
Барнаул
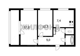
Продается просторная трехкомнатная квартира в тихом районе города Барнаул. Квартира расположена на 9 этаже девятиэтажного дома по адресу ул. Солнечная Поляна, дом 7. Общая площадь квартиры 60.6 кв.м.Квартира обладает удобной планировкой и хорошим естественным освещением. В окрестностях дома развитая инфраструктура: в шаговой доступности расположены магазины, аптеки, школы и детские сады. Рядом находятся парки и скверы, создающие комфортную среду для прогулок и отдыха.Район характеризуется хорошей транспортной доступностью, позволяющей быстро и удобно добираться до любой точки города. В непосредственной близости есть все необходимое для комфортной жизни: сервисы, торговые центры, объекты культуры и развлечений.Квартира отличный вариант для семьи с детьми, а также для тех, кто ценит спокойствие и комфорт.Не упустите возможность приобрести квартиру своей мечты!Квартира без обременений и долгов. Один собственник, в собственности более 5 лет. Записывайтесь на просмотр. Реальному покупателю ХОРОШИЙ ТОРГ. В связи с переадресацией время ответа может быть увеличено, просьба звонить подольше. Если не смогли дозвониться, пишите сообщение! Возможен обмен на вашу недвижимость. Возможна продажа в рассрочку.При звонке, пожалуйста, сообщите номер варианта - JV003022110282.
60 м2
9 / 9 этаж
Панель
- Показать контакты
- Добавить в избранное
60 м2
9 / 9 этаж
Панель
5 400 000
89 109 /м2
