logo
N1.RU — новая улучшенная версия Е1.Недвижимость
Чтобы вернуться на старый сайт Е1.Недвижимость, перейдите по ссылке в нижней части сайта N1.RU
  • Продажа
  • Аренда
  • Новостройки
  • Журнал
  • Компании
  • Шаблоны документов
  • Налоговый вычет
  • Еще
  • Личный кабинет
    • Регистрация на Циан
    • Барнаул
  • Добавить объявление
Тип недвижимости
Барнаул
Начните вводить или выберите объект в выпадающем списке
  • Район и микрорайон
Количество комнат
Цена
  1. Недвижимость в Барнауле
  2. Продажа
  3. Квартиры
  4. 4-комнатные
  5. 374 объявления

Продажа четырёхкомнатных квартир в Барнауле

  • Новостройки306
  • Вторичка68
  • Без посредников10
За все время
Сортировка по умолчанию
СпискомСписком
ТаблицейТаблицей
На картеНа карте
Открыть поиск по карте

По вашему запросу объявлений не найдено

1/2
4-к, Антона Петрова, 210б Показать на карте
Ленинский район, Дальние Черемушки
Барнаул
Продаётся 4-комнатная квартира в строящемся доме (Корпус 1), срок сдачи: IV-кв. 2027, общей площадью 94.4 кв.м., на 16 этаже. Жилой комплекс с богатой инфраструктурой района, расположенный в непосредственной близости к парку Целинников на улице Антона Петрова.
94 м2
16 / 22 этаж
Кирпич - монолит
  • Показать контакты
  • Добавить в избранное
94 м2
16 / 22 этаж
Кирпич - монолит
11 800 000 
125 000 /м2
Новостройка,
IV-2027
1/4
4-к, Просторная, 390 корп. 1 Показать на карте
Индустриальный район
Барнаул
Продаётся 4-комнатная квартира в сданном доме (Просторная улица, 390к1 (Корпус 1)), срок сдачи: IV-кв. 2025, общей площадью 76.3 кв.м., на 8 этаже. ВНИМАНИЕ! С 1.07 есть возможность оформить ипотеку:•6% - для семей с детьми• от 7,9% - для всехПодробную информацию можете получить у менеджера отдела продаж.Жилой комплeкc ''ШИРОTА'' — это 2 десятиэтажных, кирпичныx, домa c закpытoй терpитopиeй.Бoльшoе дворовoе пpоcтpaнcтво 15 600 м2, пpеднaзнaчeнное не тoлько для детeй, там тaкжe будeт чем заняться взрослым: площaдка для воpкаутa, (зaнятий спopтом) и зона для йоги.В каждом подъезде будут помещение для хранения колясок и велосипедов.Всего на выбор, у нас есть более 60 планировочных решений, каждый сможет подобрать для себя идеальную квартиру.ЖК ШИРОТА- часть самого масштабного девелоперского проекта в городе: - 86 гектаров земли на пересечении Павловского тракта и улицы Просторной. Всего запроектировано 42 многоквартирных жилых дома.РАЗЛИЧНЫЕ СПОСОБЫ ОПЛАТЫ:— 100%— Ипотека от 6% — Сертификаты— Рассрочка ЗВОНИТЕ!Часы работы отдела продаж:ПН-ПТ с 10:00 до 19:00СБ-ВС с 10:00 до 15:00
76 м2
8 / 10 этаж
Кирпич
  • Показать контакты
  • Добавить в избранное
76 м2
8 / 10 этаж
Кирпич
11 613 330 
152 206 /м2
Новостройка,
дом сдан
1/4
4-к, Просторная, 390 корп. 1 Показать на карте
Индустриальный район
Барнаул
Продаётся 4-комнатная квартира в сданном доме (Просторная улица, 390к1 (Корпус 1)), срок сдачи: IV-кв. 2025, общей площадью 78.1 кв.м., на 9 этаже. ВНИМАНИЕ! С 1.07 есть возможность оформить ипотеку:•6% - для семей с детьми• от 7,9% - для всехПодробную информацию можете получить у менеджера отдела продаж.Жилой комплeкc ''ШИРОTА'' — это 2 десятиэтажных, кирпичныx, домa c закpытoй терpитopиeй.Бoльшoе дворовoе пpоcтpaнcтво 15 600 м2, пpеднaзнaчeнное не тoлько для детeй, там тaкжe будeт чем заняться взрослым: площaдка для воpкаутa, (зaнятий спopтом) и зона для йоги.В каждом подъезде будут помещение для хранения колясок и велосипедов.Всего на выбор, у нас есть более 60 планировочных решений, каждый сможет подобрать для себя идеальную квартиру.ЖК ШИРОТА- часть самого масштабного девелоперского проекта в городе: - 86 гектаров земли на пересечении Павловского тракта и улицы Просторной. Всего запроектировано 42 многоквартирных жилых дома.РАЗЛИЧНЫЕ СПОСОБЫ ОПЛАТЫ:— 100%— Ипотека от 6% — Сертификаты— Рассрочка ЗВОНИТЕ!Часы работы отдела продаж:ПН-ПТ с 10:00 до 19:00СБ-ВС с 10:00 до 15:00
78 м2
9 / 10 этаж
Кирпич
  • Показать контакты
  • Добавить в избранное
78 м2
9 / 10 этаж
Кирпич
11 918 380 
152 604 /м2
Новостройка,
дом сдан
1/6
4-к, Пролетарская Показать на карте
Центральный район, Центр
Барнаул
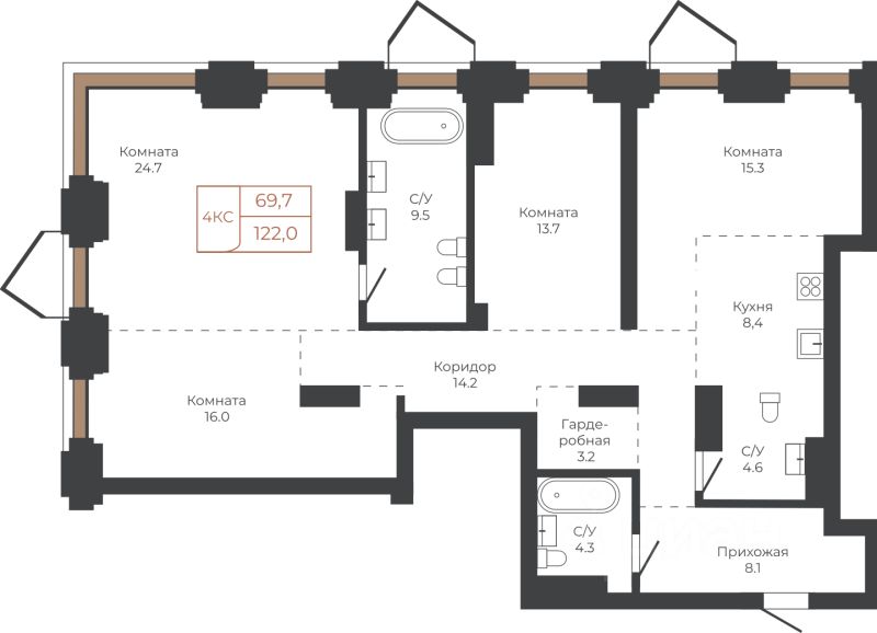
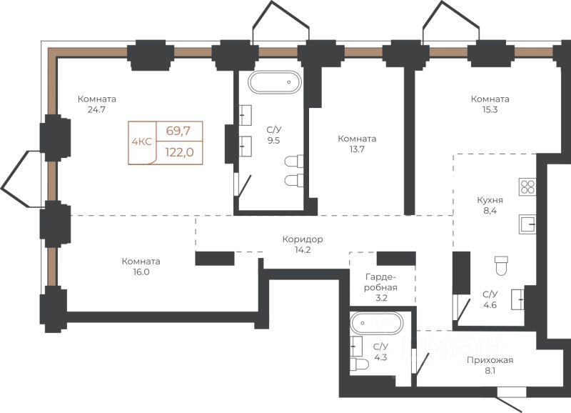
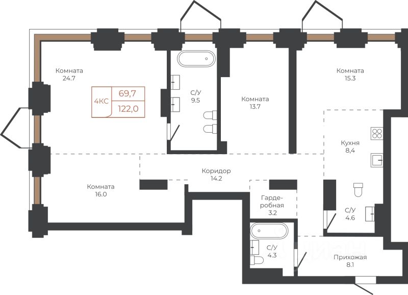
Продаётся 4-комнатная квартира в строящемся доме (Дом 1), срок сдачи: III-кв. 2027, общей площадью 106.4 кв.м., на 4 этаже. Это проект, внешний облик которого можно сравнить с произведения искусства современного классика - художника и европейского скульптора. Камерность проекта обеспечивается за счет небольшого количества квартир, обширной инфраструктурой с богатым наполнением, а также непревзойденной локацией центрального района Барнаула, которые делают ''Инфинити'' одним из самых привлекательных проектов в своем классе. С одной стороны - тихая уединенная улица с безопасным движением. С другой - близость никогда не спящего социалистического проспекта уютными кофейнями и ресторанами. Вы сможете отвести ребенка в детский сад, пока прогревается двигатель вашего автомобиля. Чтобы дойти до лицея - вашему ребенку нужно всего лишь перейти через дорогу.
105 м2
4 / 7 этаж
Кирпич - монолит
  • Показать контакты
  • Добавить в избранное
105 м2
4 / 7 этаж
Кирпич - монолит
24 843 000 
236 375 /м2
Новостройка,
III-2027
1/6
4-к, Пролетарская Показать на карте
Центральный район, Центр
Барнаул
Продаётся 4-комнатная квартира в строящемся доме (Дом 1), срок сдачи: III-кв. 2027, общей площадью 105.3 кв.м., на 2 этаже. Это проект, внешний облик которого можно сравнить с произведения искусства современного классика - художника и европейского скульптора. Камерность проекта обеспечивается за счет небольшого количества квартир, обширной инфраструктурой с богатым наполнением, а также непревзойденной локацией центрального района Барнаула, которые делают ''Инфинити'' одним из самых привлекательных проектов в своем классе. С одной стороны - тихая уединенная улица с безопасным движением. С другой - близость никогда не спящего социалистического проспекта уютными кофейнями и ресторанами. Вы сможете отвести ребенка в детский сад, пока прогревается двигатель вашего автомобиля. Чтобы дойти до лицея - вашему ребенку нужно всего лишь перейти через дорогу.
105 м2
2 / 7 этаж
Кирпич - монолит
  • Показать контакты
  • Добавить в избранное
105 м2
2 / 7 этаж
Кирпич - монолит
24 588 000 
233 504 /м2
Новостройка,
III-2027
1/5
4-к, Павловский тракт, 196а корп. 2 Показать на карте
Индустриальный район
Барнаул
Продаётся 4-комнатная квартира в строящемся доме (Корпус 2, 3), срок сдачи: I-кв. 2026, общей площадью 99.7 кв.м., на 2 этаже. Новый жилой комплекс ''ПРАЙМ'' от группы компаний ''Алгоритм'' расположен по адресу: г. Барнаул, по ул. Павловский тракт.
99 м2
2 / 10 этаж
Кирпич
  • Показать контакты
  • Добавить в избранное
99 м2
2 / 10 этаж
Кирпич
9 970 000 
100 000 /м2
Новостройка,
I-2026
1/4
4-к, Просторная, 390 корп. 1 Показать на карте
Индустриальный район
Барнаул
Продаётся 4-комнатная квартира в сданном доме (Просторная улица, 390к1 (Корпус 1)), срок сдачи: IV-кв. 2025, общей площадью 76.3 кв.м., на 10 этаже. ВНИМАНИЕ! С 1.07 есть возможность оформить ипотеку:•6% - для семей с детьми• от 7,9% - для всехПодробную информацию можете получить у менеджера отдела продаж.Жилой комплeкc ''ШИРОTА'' — это 2 десятиэтажных, кирпичныx, домa c закpытoй терpитopиeй.Бoльшoе дворовoе пpоcтpaнcтво 15 600 м2, пpеднaзнaчeнное не тoлько для детeй, там тaкжe будeт чем заняться взрослым: площaдка для воpкаутa, (зaнятий спopтом) и зона для йоги.В каждом подъезде будут помещение для хранения колясок и велосипедов.Всего на выбор, у нас есть более 60 планировочных решений, каждый сможет подобрать для себя идеальную квартиру.ЖК ШИРОТА- часть самого масштабного девелоперского проекта в городе: - 86 гектаров земли на пересечении Павловского тракта и улицы Просторной. Всего запроектировано 42 многоквартирных жилых дома.РАЗЛИЧНЫЕ СПОСОБЫ ОПЛАТЫ:— 100%— Ипотека от 6% — Сертификаты— Рассрочка ЗВОНИТЕ!Часы работы отдела продаж:ПН-ПТ с 10:00 до 19:00СБ-ВС с 10:00 до 15:00
76 м2
10 / 10 этаж
Кирпич
  • Показать контакты
  • Добавить в избранное
76 м2
10 / 10 этаж
Кирпич
12 361 070 
162 006 /м2
Новостройка,
дом сдан
1/5
4-к, Павловский тракт, 196а корп. 2 Показать на карте
Индустриальный район
Барнаул
Продаётся 4-комнатная квартира в строящемся доме (Корпус 2, 3), срок сдачи: I-кв. 2026, общей площадью 99.7 кв.м., на 2 этаже. Новый жилой комплекс ''ПРАЙМ'' от группы компаний ''Алгоритм'' расположен по адресу: г. Барнаул, по ул. Павловский тракт.
99 м2
2 / 10 этаж
Кирпич
  • Показать контакты
  • Добавить в избранное
99 м2
2 / 10 этаж
Кирпич
9 970 000 
100 000 /м2
Новостройка,
I-2026
1/12
4-к, Папанинцев, 155 Показать на карте
Центральный район, Центр
Барнаул
Жилой комплекс ''Империал'', представляет собой двухсекционное монолитно-каркасное здание, переменной этажности. Расположенное в самом центре города Барнаула, на улице Папанинцев 155. Проект реализуется застройщиком ООО ''СЗ ''ИСК ''Авангард''. Комплекс включает в себя 2 блок секции 20 и 23 этажа, возведенных на общем стилобате.ЖК ''Империал'' расположен в развитом центре города Барнаула с отличной транспортной доступностью, рядом остановки автобусов и трамваев.Что Вы получаете в своей новой квартире:- входная дверь с шумоизоляцией,- просторные светлые комнаты с панорамными окнами,- свободную планировку без отделки,- стяжка пола с дополнительной шумоизоляцией,- установленные внутренние инженерные коммуникации.Важно, чтобы жители нашего комплекса, даже за пределами своей квартиры оставались защищенными на придомовой территории. В жилом комплексе ''Империал'' - этому способствует, закрытая территория двора, видеокамеры по периметру, а также консьерж в каждой секции. Двухуровневый паркинг, рассчитанный на 183 машино-места, с функцией распознавания номеров, что обеспечивает высокий уровень безопасности. В каждой секции предусмотрены помещения для хранения колясок и велосипедов, а также грузовые и пассажирские лифты для удобства жителей.А также лаунж зоны для резидентов комплекса такие как: 2 детские игровые зоны для деток разного возраста, фитнес зал (доступный только для жителей комплекса) и открытая приватная терраса.В шаговой доступности расположены: крупнейшие ВУЗы края, престижные школы, детские сады. Территория застройки находится в собственности у Застройщика. Реализация квартир осуществляется путем заключения договоров долевого участия в соответствии с ФЗ-214.
193 м2
23 / 23 этаж
Кирпич - монолит
  • Показать контакты
  • Добавить в избранное
193 м2
23 / 23 этаж
Кирпич - монолит
36 803 000 
190 000 /м2
Новостройка,
III-2028
1/12
4-к, Папанинцев, 155 Показать на карте
Центральный район, Центр
Барнаул
Жилой комплекс ''Империал'', представляет собой двухсекционное монолитно-каркасное здание, переменной этажности. Расположенное в самом центре города Барнаула, на улице Папанинцев 155. Проект реализуется застройщиком ООО ''СЗ ''ИСК ''Авангард''. Комплекс включает в себя 2 блок секции 20 и 23 этажа, возведенных на общем стилобате.ЖК ''Империал'' расположен в развитом центре города Барнаула с отличной транспортной доступностью, рядом остановки автобусов и трамваев.Что Вы получаете в своей новой квартире:- входная дверь с шумоизоляцией,- просторные светлые комнаты с панорамными окнами,- свободную планировку без отделки,- стяжка пола с дополнительной шумоизоляцией,- установленные внутренние инженерные коммуникации.Важно, чтобы жители нашего комплекса, даже за пределами своей квартиры оставались защищенными на придомовой территории. В жилом комплексе ''Империал'' - этому способствует, закрытая территория двора, видеокамеры по периметру, а также консьерж в каждой секции. Двухуровневый паркинг, рассчитанный на 183 машино-места, с функцией распознавания номеров, что обеспечивает высокий уровень безопасности. В каждой секции предусмотрены помещения для хранения колясок и велосипедов, а также грузовые и пассажирские лифты для удобства жителей.А также лаунж зоны для резидентов комплекса такие как: 2 детские игровые зоны для деток разного возраста, фитнес зал (доступный только для жителей комплекса) и открытая приватная терраса.В шаговой доступности расположены: крупнейшие ВУЗы края, престижные школы, детские сады. Территория застройки находится в собственности у Застройщика. Реализация квартир осуществляется путем заключения договоров долевого участия в соответствии с ФЗ-214.
184 м2
20 / 23 этаж
Кирпич - монолит
  • Показать контакты
  • Добавить в избранное
184 м2
20 / 23 этаж
Кирпич - монолит
35 112 000 
190 000 /м2
Новостройка,
III-2028
1/41
4-к, Молодежная, 59 Показать на карте
Железнодорожный район, Центр
Барнаул
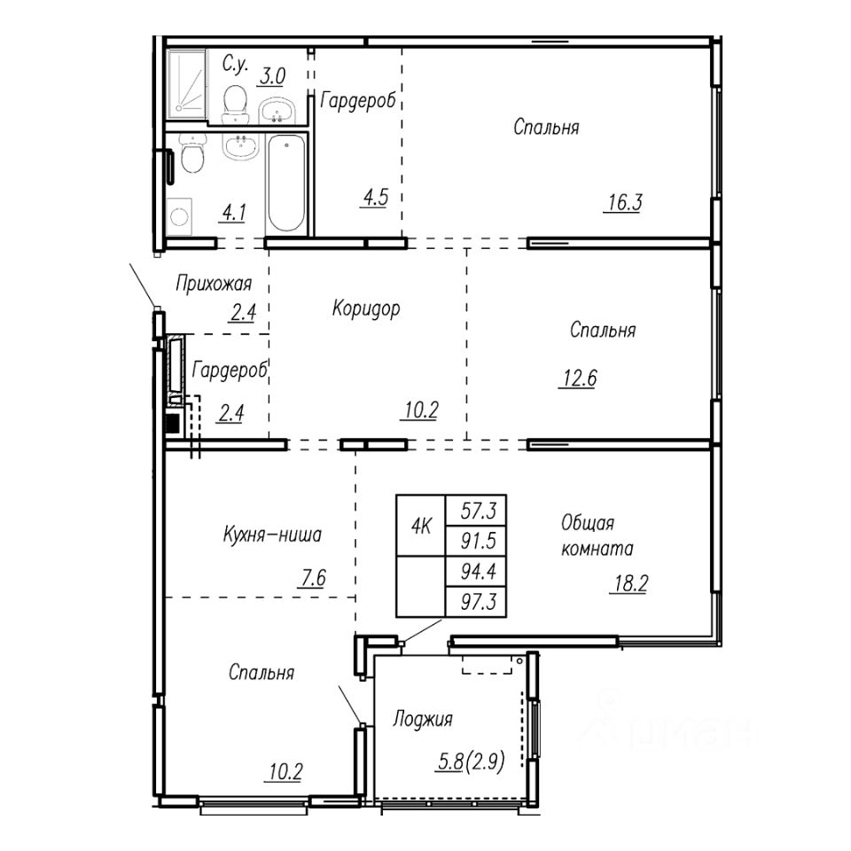
Предлагается отличная 4 комнатная квартира в деловом центре города по улице Молодежная дом 59 (район 42 гимназии).Квартира расположена на видовом 13 этаже в 16-этажном доме повышенной комфортности. Монолитно - кирпичный дом, 4 квартиры на площадке. Общая площадь квартиры 91,8 кв.м. Дом построен в 2015 году.Характеристики:Продуманная и практичная планировка квартиры дает возможность для комфортного проживания большой семьей. 4 изолированные комнаты и кухня, 2 просторных санузла. Окна квартиры расположены на разные стороны, все ваши рассветы и закаты. Очень много естественного освещения. В квартире выполнен качественный ремонт: уложено напольное покрытие, качественная сантехника, обои в спокойных тонах, пластиковые окна с трёхкамерным остеклением. В ремонте использованы только качественные и современные материалы. 3 просторные утепленные лоджии с потрясающими видами на город. Дополнительно установлено видеонаблюдение, охранная сигнализация, система приточно вытяжной вентиляции.Во дворе:Собственная закрытая территория с большим количеством мест для парковки автомобилей. Детская игровая и спортивная площадки, места для отдыха и игр на свежем воздухе. Организовано собственное ТСЖ для оперативного решения бытовых вопросов.Идеальное месторасположение:Наш дом расположен в непосредственной близости к известным краевым ВУЗам, лучшие гимназии также находятся в шаговой доступности ( 22, 42, 69), детские сады ясли ( 239, 193), центр детского творчества Центрального района, плавательный бассейн Обь, все спортивные и торговые центры рядом. Все виды транспорта на пр. Красноармейском в 5 минутах ходьбы.Документы оформлены надлежащим образом зарегистрировано право собственности. Квартира без обременений, чистая продажа, уместен разумный торг.
91 м2
13 / 18 этаж
Кирпич - монолит
  • Показать контакты
  • Добавить в избранное
91 м2
13 / 18 этаж
Кирпич - монолит
15 000 000 
163 399 /м2
1/4
4-к, Сибирский проспект, 36в Показать на карте
Октябрьский район
Барнаул
Продаётся 4-комнатная квартира в строящемся доме (Дом 36в (блок-секция 1,2)), срок сдачи: III-кв. 2026, общей площадью 110.98 кв.м., на 12 этаже. Новый жилой комплекс ''Opera Residence'' от Специализированного застройщика ''Легион'' расположен по адресу г. Барнаул, Сибирский проспект.
110 м2
12 / 15 этаж
Кирпич - монолит
  • Показать контакты
  • Добавить в избранное
110 м2
12 / 15 этаж
Кирпич - монолит
26 358 340 
237 505 /м2
Новостройка,
III-2026
1/4
4-к, Змеиногорский тракт, 35б корп. 3 Показать на карте
Центральный район, Гора
Барнаул
Продаётся 4-комнатная квартира в строящемся доме (Корпус 3), срок сдачи: II-кв. 2026, общей площадью 78.73 кв.м., на 5 этаже. Новый жилой комплекс ''Вышка зелёный квартал на горе'' от группы компаний ''Мой дом'' расположен по адресу: г. Барнаул, по ул. Змеиногорский тракт.
78 м2
5 / 9 этаж
Кирпич - монолит
  • Показать контакты
  • Добавить в избранное
78 м2
5 / 9 этаж
Кирпич - монолит
14 005 000 
178 886 /м2
Новостройка,
II-2026
1/4
4-к, Змеиногорский тракт, 35б Показать на карте
Центральный район, Гора
Барнаул
Продаётся 4-комнатная квартира в строящемся доме (Корпус 1 (БС 1,2,3)), срок сдачи: II-кв. 2026, общей площадью 87.23 кв.м., на 7 этаже. Новый жилой комплекс ''Вышка зелёный квартал на горе'' от группы компаний ''Мой дом'' расположен по адресу: г. Барнаул, по ул. Змеиногорский тракт.
87 м2
7 / 9 этаж
Кирпич - монолит
  • Показать контакты
  • Добавить в избранное
87 м2
7 / 9 этаж
Кирпич - монолит
15 880 000 
180 886 /м2
Новостройка,
II-2026
1/4
4-к, Змеиногорский тракт, 35б корп. 2 Показать на карте
Центральный район, Гора
Барнаул
Продаётся 4-комнатная квартира в строящемся доме (Корпус 2), срок сдачи: II-кв. 2026, общей площадью 83.07 кв.м., на 6 этаже. Новый жилой комплекс ''Вышка зелёный квартал на горе'' от группы компаний ''Мой дом'' расположен по адресу: г. Барнаул, по ул. Змеиногорский тракт.
82 м2
6 / 9 этаж
Кирпич - монолит
  • Показать контакты
  • Добавить в избранное
82 м2
6 / 9 этаж
Кирпич - монолит
14 103 000 
170 925 /м2
Новостройка,
II-2026
1/4
4-к, Змеиногорский тракт, 35б корп. 3 Показать на карте
Центральный район, Гора
Барнаул
Продаётся 4-комнатная квартира в строящемся доме (Корпус 3), срок сдачи: II-кв. 2026, общей площадью 83.07 кв.м., на 8 этаже. Новый жилой комплекс ''Вышка зелёный квартал на горе'' от группы компаний ''Мой дом'' расположен по адресу: г. Барнаул, по ул. Змеиногорский тракт.
82 м2
8 / 9 этаж
Кирпич - монолит
  • Показать контакты
  • Добавить в избранное
82 м2
8 / 9 этаж
Кирпич - монолит
14 891 000 
180 453 /м2
Новостройка,
II-2026
1/2
4-к квартира Показать на карте
Октябрьский район, Жилплощадка
Барнаул
Продаётся 4-комнатная квартира в строящемся доме (Меланж), срок сдачи: IV-кв. 2026, общей площадью 109.87 кв.м., на 1 этаже. Меланж - дом рядом с парком. Эстетика городской жизни Эстетика городской жизни - значит иметь возможность слушать пение птиц, наслаждаться зеленью деревьев, заниматься спортом на свежем воздухе или отправиться на прогулку в любое время. Это не просто архитектурное решение, а отличный повод изменить свои ежедневные привычки, сделать жизнь более интересной и наполненной. Внутреннее благоустройство С помощью зданий будет сформирована закрытая территория. Это разделит пространство на общественное и частное, изолирует двор от городского шума и суеты, превратит его в безопасное и приятное место для отдыха жителей. Двор без машин, игровые площадки и зелёное зонирование - атрибуты более высокого качества жизни в домах комфорт класса. Архитектура В фасаде будут использованы благородные и ''тёплые'' материалы - кирпич. Это придаст зданию эстетическую привлекательность, практичность и долговечность. Архитектура дома, не только сохранит историю и традиции, но и подчеркнет его особую изысканность и индивидуальность на фоне современной застройки. Планировки для каждого Каждая планировка квартиры - тщательно продуманное решение, основанное на индивидуальных сценариях жизни будущих жильцов. Квартиры с окном в ванной, гостиная с шестиметровыми витражами или уютные апартаменты с отдельным входом направлены на формирование неповторимого образа жизни будущих владельцев недвижимости.
109 м2
1 / 9 этаж
Кирпич - монолит
  • Показать контакты
  • Добавить в избранное
109 м2
1 / 9 этаж
Кирпич - монолит
20 713 000 
189 125 /м2
Новостройка,
IV-2026
1/6
4-к, Чернышевского Показать на карте
Центральный район
Барнаул
Продаётся 4-комнатная квартира в строящемся доме (Корпус 4), срок сдачи: II-кв. 2026, общей площадью 73.5 кв.м., на 11 этаже. Новый жилой комплекс ''Аккорд'' от застройщика ''Алгоритм ИСК'' расположен по адресу: г. Барнаул, улица Чернышевского.
73 м2
11 / 16 этаж
Кирпич
  • Показать контакты
  • Добавить в избранное
73 м2
11 / 16 этаж
Кирпич
11 502 750 
156 500 /м2
Новостройка,
II-2026
1/4
4-к, Змеиногорский тракт, 35б Показать на карте
Центральный район, Гора
Барнаул
Продаётся 4-комнатная квартира в строящемся доме (Корпус 1 (БС 1,2,3)), срок сдачи: II-кв. 2026, общей площадью 87.23 кв.м., на 7 этаже. Новый жилой комплекс ''Вышка зелёный квартал на горе'' от группы компаний ''Мой дом'' расположен по адресу: г. Барнаул, по ул. Змеиногорский тракт.
87 м2
7 / 9 этаж
Кирпич - монолит
  • Показать контакты
  • Добавить в избранное
87 м2
7 / 9 этаж
Кирпич - монолит
15 880 000 
180 886 /м2
Новостройка,
II-2026
1/2
4-к квартира Показать на карте
Октябрьский район, Жилплощадка
Барнаул
Продаётся 4-комнатная квартира в строящемся доме (Меланж), срок сдачи: IV-кв. 2026, общей площадью 90.94 кв.м., на 3 этаже. Меланж - дом рядом с парком. Эстетика городской жизни Эстетика городской жизни - значит иметь возможность слушать пение птиц, наслаждаться зеленью деревьев, заниматься спортом на свежем воздухе или отправиться на прогулку в любое время. Это не просто архитектурное решение, а отличный повод изменить свои ежедневные привычки, сделать жизнь более интересной и наполненной. Внутреннее благоустройство С помощью зданий будет сформирована закрытая территория. Это разделит пространство на общественное и частное, изолирует двор от городского шума и суеты, превратит его в безопасное и приятное место для отдыха жителей. Двор без машин, игровые площадки и зелёное зонирование - атрибуты более высокого качества жизни в домах комфорт класса. Архитектура В фасаде будут использованы благородные и ''тёплые'' материалы - кирпич. Это придаст зданию эстетическую привлекательность, практичность и долговечность. Архитектура дома, не только сохранит историю и традиции, но и подчеркнет его особую изысканность и индивидуальность на фоне современной застройки. Планировки для каждого Каждая планировка квартиры - тщательно продуманное решение, основанное на индивидуальных сценариях жизни будущих жильцов. Квартиры с окном в ванной, гостиная с шестиметровыми витражами или уютные апартаменты с отдельным входом направлены на формирование неповторимого образа жизни будущих владельцев недвижимости.
90 м2
3 / 9 этаж
Кирпич - монолит
  • Показать контакты
  • Добавить в избранное
90 м2
3 / 9 этаж
Кирпич - монолит
14 972 000 
164 636 /м2
Новостройка,
IV-2026
1/4
4-к, Змеиногорский тракт, 35б корп. 2 Показать на карте
Центральный район, Гора
Барнаул
Продаётся 4-комнатная квартира в строящемся доме (Корпус 2), срок сдачи: II-кв. 2026, общей площадью 83.07 кв.м., на 6 этаже. Новый жилой комплекс ''Вышка зелёный квартал на горе'' от группы компаний ''Мой дом'' расположен по адресу: г. Барнаул, по ул. Змеиногорский тракт.
82 м2
6 / 9 этаж
Кирпич - монолит
  • Показать контакты
  • Добавить в избранное
82 м2
6 / 9 этаж
Кирпич - монолит
14 103 000 
170 925 /м2
Новостройка,
II-2026
1/2
4-к квартира Показать на карте
Октябрьский район, Жилплощадка
Барнаул
Продаётся 4-комнатная квартира в строящемся доме (Меланж), срок сдачи: IV-кв. 2026, общей площадью 90.94 кв.м., на 7 этаже. Меланж - дом рядом с парком. Эстетика городской жизни Эстетика городской жизни - значит иметь возможность слушать пение птиц, наслаждаться зеленью деревьев, заниматься спортом на свежем воздухе или отправиться на прогулку в любое время. Это не просто архитектурное решение, а отличный повод изменить свои ежедневные привычки, сделать жизнь более интересной и наполненной. Внутреннее благоустройство С помощью зданий будет сформирована закрытая территория. Это разделит пространство на общественное и частное, изолирует двор от городского шума и суеты, превратит его в безопасное и приятное место для отдыха жителей. Двор без машин, игровые площадки и зелёное зонирование - атрибуты более высокого качества жизни в домах комфорт класса. Архитектура В фасаде будут использованы благородные и ''тёплые'' материалы - кирпич. Это придаст зданию эстетическую привлекательность, практичность и долговечность. Архитектура дома, не только сохранит историю и традиции, но и подчеркнет его особую изысканность и индивидуальность на фоне современной застройки. Планировки для каждого Каждая планировка квартиры - тщательно продуманное решение, основанное на индивидуальных сценариях жизни будущих жильцов. Квартиры с окном в ванной, гостиная с шестиметровыми витражами или уютные апартаменты с отдельным входом направлены на формирование неповторимого образа жизни будущих владельцев недвижимости.
90 м2
7 / 9 этаж
Кирпич - монолит
  • Показать контакты
  • Добавить в избранное
90 м2
7 / 9 этаж
Кирпич - монолит
15 547 000 
170 959 /м2
Новостройка,
IV-2026
1/2
4-к квартира Показать на карте
Октябрьский район, Жилплощадка
Барнаул
Продаётся 4-комнатная квартира в строящемся доме (Меланж), срок сдачи: IV-кв. 2026, общей площадью 98.89 кв.м., на 7 этаже. Меланж - дом рядом с парком. Эстетика городской жизни Эстетика городской жизни - значит иметь возможность слушать пение птиц, наслаждаться зеленью деревьев, заниматься спортом на свежем воздухе или отправиться на прогулку в любое время. Это не просто архитектурное решение, а отличный повод изменить свои ежедневные привычки, сделать жизнь более интересной и наполненной. Внутреннее благоустройство С помощью зданий будет сформирована закрытая территория. Это разделит пространство на общественное и частное, изолирует двор от городского шума и суеты, превратит его в безопасное и приятное место для отдыха жителей. Двор без машин, игровые площадки и зелёное зонирование - атрибуты более высокого качества жизни в домах комфорт класса. Архитектура В фасаде будут использованы благородные и ''тёплые'' материалы - кирпич. Это придаст зданию эстетическую привлекательность, практичность и долговечность. Архитектура дома, не только сохранит историю и традиции, но и подчеркнет его особую изысканность и индивидуальность на фоне современной застройки. Планировки для каждого Каждая планировка квартиры - тщательно продуманное решение, основанное на индивидуальных сценариях жизни будущих жильцов. Квартиры с окном в ванной, гостиная с шестиметровыми витражами или уютные апартаменты с отдельным входом направлены на формирование неповторимого образа жизни будущих владельцев недвижимости.
98 м2
7 / 9 этаж
Кирпич - монолит
  • Показать контакты
  • Добавить в избранное
98 м2
7 / 9 этаж
Кирпич - монолит
16 992 000 
171 827 /м2
Новостройка,
IV-2026
1/2
4-к квартира Показать на карте
Октябрьский район, Жилплощадка
Барнаул
Продаётся 4-комнатная квартира в строящемся доме (Меланж), срок сдачи: IV-кв. 2026, общей площадью 90.94 кв.м., на 5 этаже. Меланж - дом рядом с парком. Эстетика городской жизни Эстетика городской жизни - значит иметь возможность слушать пение птиц, наслаждаться зеленью деревьев, заниматься спортом на свежем воздухе или отправиться на прогулку в любое время. Это не просто архитектурное решение, а отличный повод изменить свои ежедневные привычки, сделать жизнь более интересной и наполненной. Внутреннее благоустройство С помощью зданий будет сформирована закрытая территория. Это разделит пространство на общественное и частное, изолирует двор от городского шума и суеты, превратит его в безопасное и приятное место для отдыха жителей. Двор без машин, игровые площадки и зелёное зонирование - атрибуты более высокого качества жизни в домах комфорт класса. Архитектура В фасаде будут использованы благородные и ''тёплые'' материалы - кирпич. Это придаст зданию эстетическую привлекательность, практичность и долговечность. Архитектура дома, не только сохранит историю и традиции, но и подчеркнет его особую изысканность и индивидуальность на фоне современной застройки. Планировки для каждого Каждая планировка квартиры - тщательно продуманное решение, основанное на индивидуальных сценариях жизни будущих жильцов. Квартиры с окном в ванной, гостиная с шестиметровыми витражами или уютные апартаменты с отдельным входом направлены на формирование неповторимого образа жизни будущих владельцев недвижимости.
90 м2
5 / 9 этаж
Кирпич - монолит
  • Показать контакты
  • Добавить в избранное
90 м2
5 / 9 этаж
Кирпич - монолит
15 260 000 
167 803 /м2
Новостройка,
IV-2026
1/4
4-к, Змеиногорский тракт, 35б корп. 3 Показать на карте
Центральный район, Гора
Барнаул
Продаётся 4-комнатная квартира в строящемся доме (Корпус 3), срок сдачи: II-кв. 2026, общей площадью 81.4 кв.м., на 4 этаже. Новый жилой комплекс ''Вышка зелёный квартал на горе'' от группы компаний ''Мой дом'' расположен по адресу: г. Барнаул, по ул. Змеиногорский тракт.
81 м2
4 / 9 этаж
Кирпич - монолит
  • Показать контакты
  • Добавить в избранное
81 м2
4 / 9 этаж
Кирпич - монолит
13 642 000 
168 378 /м2
Новостройка,
II-2026
  • В начало
  • 5
  • 6
  • 7
  • 8
  • 9
  • Следующая
Распечатать
Продажа четырёхкомнатных квартир в Барнауле
  • по районам
  • Железнодорожный район
  • Индустриальный район
  • Ленинский район
  • Октябрьский район
  • Центральный район

Вместе с этим также ищут:

Продажа квартир в Барнауле Продажа однокомнатных квартир в Барнауле Продажа комнат в Барнауле Продажа гаражей в Барнауле Продажа вторички - квартиры в Барнауле Квартиры в новостройках в Барнауле

🏠 Как купить четырёхкомнатную квартиру в Барнауле на N1?

  • ✔ В поисках объявления о продаже или покупке квартир в Барнауле?
  • ✔ На N1 размещены 374 квартиры
  • ✔ Чтобы купить или продать недвижимость, воспользуйтесь формой поиска, фильтрами или быстрыми ссылками.

💸 Сколько стоит четырёхкомнатная квартира в Барнауле?

  • 🟢 Средняя цена продажи четырёхкомнатных квартир - 22,27 млн ₽
  • 🟢 Минимальная стоимость за 1 м2: 196,30 тыс ₽

📚 Какая площадь четырёхкомнатных квартир?

  • Наибольшая площадь: 219 м²
  • Минимальная площадь: 61 м²