1-к, Комсомольский проспект Показать на карте
Центральный район, Центр
Барнаул
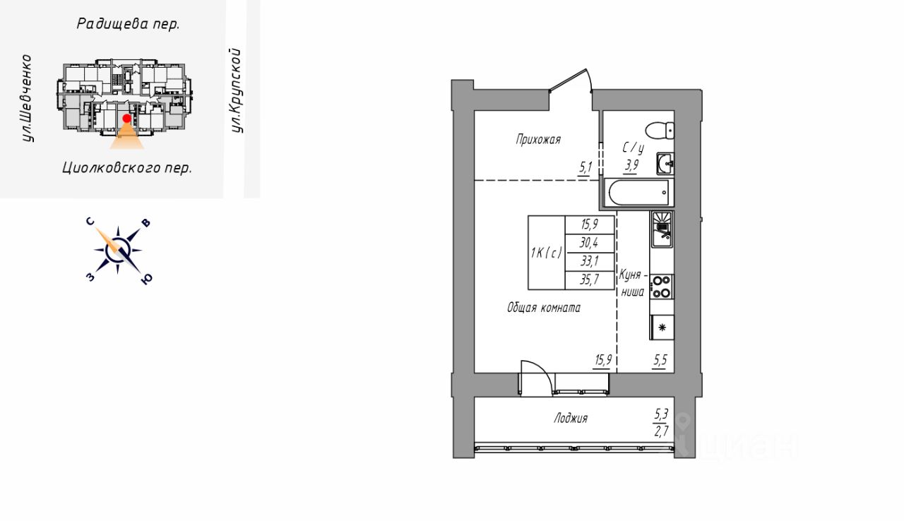
Продаётся 1-комнатная квартира в строящемся доме (БС 4), срок сдачи: IV-кв. 2028, общей площадью 38.34 кв.м., на 5 этаже. Новый жилой комплекс ''Фортлайф'' от группы компаний ''Строительный Камень ИСК'' расположен по адресу: г. Барнаул, по ул. пр-кт Комсомольский.
38 м2
5 / 11 этаж
Панель
- Показать контакты
- Добавить в избранное
38 м2
5 / 11 этаж
Панель
7 092 900
185 000 /м2
Новостройка,
IV-2028
IV-2028
