2-к, Чеглецова, 25а корп. 1 Показать на карте
Октябрьский район, Поток
Барнаул
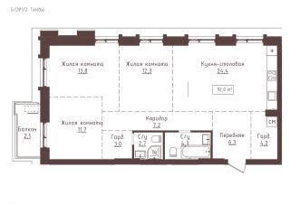
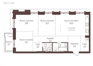
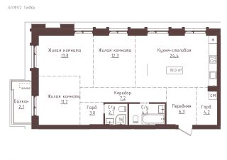
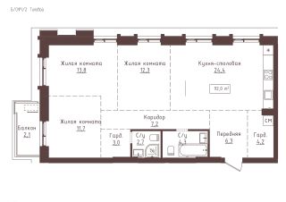
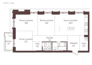
Продаётся 2-комнатная квартира в строящемся доме (Корпус 1), срок сдачи: II-кв. 2027, общей площадью 41 кв.м., на 4 этаже. ЖК ''Тургенев'' на ул. Чеглецова, 25а представляет из себя два кирпичных здания высотой 9 этажей. Предлагаем к покупке первый корпус, состоящий из двух подъездов. В каждом запроектированы квартиры с продуманной планировкой от 34,8-57,7 квадратных метров. Фасады выполнены в стилизованных формах с использованием остекленных лоджий и архитектурной подсветкой. Высота 1 и 9 этажа - 3 метра. На первом этаже предусмотрены нежилые помещения с гибким функциональным назначением. ЖК ''Тургенев'' удачно расположен в тихом районе города и в то же время имеет отличную транспортную развязку, до проспекта Ленина и улицы Северо-Западной всего 500 метров. В шаговой доступности бассейн Аврора, Краевой стрелково-спортивный центр, тренажёрный зал, парк развлечений ''Солнечный Ветер'', а до Юбилейного парка, где расположен скейт-парк, велодорожки, красивые места отдыха и практически ручные белки всего 650 метров. Также эта локация отличается обилием образовательных учреждений от детских садов, школ до колледжей.
41 м2
4 / 9 этаж
Кирпич
- Показать контакты
- Добавить в избранное
41 м2
4 / 9 этаж
Кирпич
6 955 520
169 647 /м2
Новостройка,
II-2027
II-2027
