3-к, Социалистический проспект, 97 Показать на карте
Железнодорожный район, Центр
Барнаул
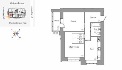
Продаётся 3-комнатная квартира в строящемся доме (Башня 2 и секция 2), срок сдачи: III-кв. 2029, общей площадью 106.9 кв.м., на 4 этаже. Новый жилой комплекс ''Сахаров Парк'' от Специализированного застройщика ''ДомСтрой-Барнаул22'' расположен по адресу: г. Барнаул, Социалистический пр-кт.
106 м2
4 / 16 этаж
Кирпич - монолит
- Показать контакты
- Добавить в избранное
106 м2
4 / 16 этаж
Кирпич - монолит
37 337 177
349 272 /м2
Новостройка,
III-2029
III-2029
