2-к, Им. Анатолия Мельникова Показать на карте
Индустриальный район
Барнаул
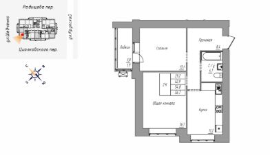
Продаётся 2-комнатная квартира в строящемся доме (Дом 3 Корпус 2), срок сдачи: III-кв. 2027, общей площадью 61.7 кв.м., на 2 этаже. Новый жилой комплекс ''Спектр'' от группы компаний ''Алгоритм'' расположен по адресу: г. Барнаул, по ул. им. Анатолия Мельникова.
61 м2
2 / 10 этаж
Панель
- Показать контакты
- Добавить в избранное
61 м2
2 / 10 этаж
Панель
7 527 400
122 000 /м2
Новостройка,
III-2027
III-2027
