2-к, им В.Н.Баварина площадь, 8 корп. 1 Показать на карте
Центральный район
Барнаул
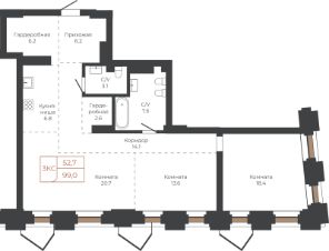
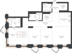
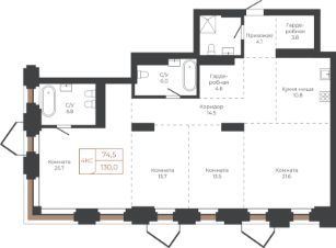
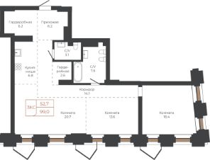
Продаётся 2-комнатная квартира в строящемся доме (Башня ''Столица'' (Корпус 1)), срок сдачи: I-кв. 2030, общей площадью 93.8 кв.м., на 16 этаже. Две башни формируют принципиально новое городское life-style пространство для жителеи и горожан. Единыи ансамбль площади Баварина и набережнои станет новым городским центром. АРХИТЕКТУРНЫЙ КОМПЛЕКС СТАНЕТ СИМВОЛИЧЕСКИМИ ВОРОТАМИ В ГОРОД И ЕГО ВИЗИТНОИ КАРТОЧКОИ И ОТРАЗИТ РАЗВИТИЕ БАРНАУЛА. Инфраструктура и расположение ТЕРРИТОРИЯ КОМПЛЕКСА - ВАЖНАЯ ТОЧКА, СВЯЗЫВАЮЩАЯ ДЕЛОВОИ И КУЛЬТУРНЫИ ЦЕНТРЫ БАРНАУЛА. БАШНИ ЗАМЫКАЮТ СТВОР УЛИЦЫ ЛЕНИНА И СЛУЖАТ ГОРОДСКИМИ ВОРОТАМИ НА НАБЕРЕЖНУЮ. Башни ''Столица'' и ''Мира'' будут буквально парить в воздухе у набережной. Дома установят на стилобат - платформу до высоты третьего этажа. Решение даст возможность пересекать территорию насквозь через комплекс к реке. Башни создают новые пешеходные связи со стороны улицы Ленина к набережнои.
93 м2
16 / 27 этаж
Кирпич - монолит
- Показать контакты
- Добавить в избранное
93 м2
16 / 27 этаж
Кирпич - монолит
23 299 920
248 400 /м2
Новостройка,
I-2030
I-2030
