3-к, Папанинцев, 157 Показать на карте
Центральный район, Центр
Барнаул
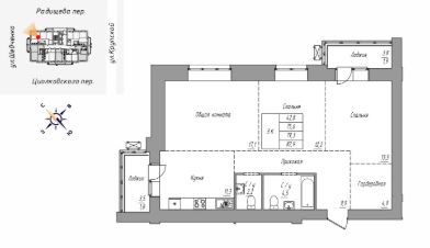
Продаётся 3-комнатная квартира в строящемся доме (Блок-секция 1-2), срок сдачи: III-кв. 2028, общей площадью 66.9 кв.м., на 7 этаже. Новый жилой комплекс ''Империал'' от группы компаний ''Авангард'' расположен по адресу: г. Барнаул, по ул. Папанинцев.
66 м2
7 / 23 этаж
Кирпич - монолит
- Показать контакты
- Добавить в избранное
66 м2
7 / 23 этаж
Кирпич - монолит
10 637 100
159 000 /м2
Новостройка,
III-2028
III-2028
