4-к, Димитрова, 150 Показать на карте
Железнодорожный район
Барнаул
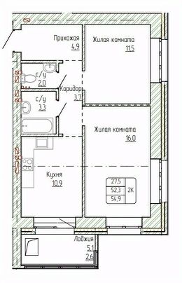
Продаётся 4-комнатная квартира в строящемся доме (Дом 1), срок сдачи: I-кв. 2028, общей площадью 75.2 кв.м., на 7 этаже. Новый жилой комплекс от Специализированного застройщика ''Т-Строй'' расположен по адресу: г. Барнаул, по ул. Димитрова.
75 м2
7 / 9 этаж
Кирпич - монолит
- Показать контакты
- Добавить в избранное
75 м2
7 / 9 этаж
Кирпич - монолит
11 054 400
147 000 /м2
Новостройка,
I-2028
I-2028
