Мы объединились! Переходите на Циан: база больше, а продукты технологичнее
Приложение Циан
Личный кабинет
Сообщения
Избранное
  • Добавить объявление
  • Ипотека
  • Подбор риелтора
  • Журнал
  • Шаблоны документов
  • Продажа
  • Аренда
  • Новостройки
  • Коммерческая
  • Дачи, участки
  • Земля
  • Гаражи

Продажа квартир в Барнауле

4455 объяв.
1/6
9 241 375 ₽
3-к, Чернышевского, 189
Центральный район
51 м² · Этаж 14 из 16
Новостройка, сдана
Продаётся 3-комнатная квартира в строящемся доме (Корпус 1), срок сдачи: II-кв. 2026, общей площадью 51.7 кв.м., на 14 этаже. Новый жилой комплекс ''Аккорд'' от застройщика ''Алгоритм ИСК'' расположен по адресу: г. Барнаул, улица Чернышевского.
1/3
6 913 720 ₽
2-к, Чеглецова, 25а корп. 1
Поток, Октябрьский район
41 м² · Этаж 4 из 9
Новостройка, 2 кв. 2027
Продаётся 2-комнатная квартира в строящемся доме (Корпус 1), срок сдачи: II-кв. 2027, общей площадью 41 кв.м., на 4 этаже. ЖК ''Тургенев'' на ул. Чеглецова, 25а представляет из себя два кирпичных здания высотой 9 этажей. Предлагаем к покупке первый корпус, состоящий из двух подъездов. В каждом запроектированы квартиры с продуманной планировкой от 34,8-57,7 квадратных метров. Фасады выполнены в стилизованных формах с использованием остекленных лоджий и архитектурной подсветкой. Высота 1 и 9 этажа - 3 метра. На первом этаже предусмотрены нежилые помещения с гибким функциональным назначением. ЖК ''Тургенев'' удачно расположен в тихом районе города и в то же время имеет отличную транспортную развязку, до проспекта Ленина и улицы Северо-Западной всего 500 метров. В шаговой доступности бассейн Аврора, Краевой стрелково-спортивный центр, тренажёрный зал, парк развлечений ''Солнечный Ветер'', а до Юбилейного парка, где расположен скейт-парк, велодорожки, красивые места отдыха и практически ручные белки всего 650 метров. Также эта локация отличается обилием образовательных учреждений от детских садов, школ до колледжей.
1/6
9 269 810 ₽
3-к, Чернышевского, 189
Центральный район
51 м² · Этаж 15 из 16
Новостройка, сдана
Продаётся 3-комнатная квартира в строящемся доме (Корпус 1), срок сдачи: II-кв. 2026, общей площадью 51.7 кв.м., на 15 этаже. Новый жилой комплекс ''Аккорд'' от застройщика ''Алгоритм ИСК'' расположен по адресу: г. Барнаул, улица Чернышевского.
1/5
7 289 100 ₽
1-к, Промышленная, 10
Центральный район
44 м² · Этаж 11 из 23
Новостройка, 4 кв. 2029
Новый жилой комплекс ''Родные берега'' от застройщика ''Жилищная Инициатива'' расположен по адресу: Алтайский край, г. Барнаул, Центральный район , улица Промышленная, д. 10
7 766 374 ₽
1-к, Партизанская, 21а
Центр, Центральный район
51 м² · Этаж 2 из 9
Новостройка, сдана
Продаётся 1-комнатная квартира в сданном доме (Партизанскаяа, 21А (Дом 1)), срок сдачи: II-кв. 2025, общей площадью 51.8 кв.м., на 2 этаже. Новый жилой комплекс от Специализированного застройщика ''ПРАЙД ИНВЕСТ'' расположен по адресу: г. Барнаул, по ул. Партизанская.
1/5
6 138 670 ₽
1-к, Промышленная, 10
Центральный район
35 м² · Этаж 4 из 23
Новостройка, 4 кв. 2029
Новый жилой комплекс ''Родные берега'' от застройщика ''Жилищная Инициатива'' расположен по адресу: Алтайский край, г. Барнаул, Центральный район , улица Промышленная, д. 10
1/5
7 200 100 ₽
1-к, Промышленная, 10
Центральный район
44 м² · Этаж 9 из 23
Новостройка, 4 кв. 2029
Новый жилой комплекс ''Родные берега'' от застройщика ''Жилищная Инициатива'' расположен по адресу: Алтайский край, г. Барнаул, Центральный район , улица Промышленная, д. 10
1/3
5 947 320 ₽
1-к, Чеглецова, 25а корп. 1
Поток, Октябрьский район
34 м² · Этаж 6 из 9
Новостройка, 2 кв. 2027
Продаётся 1-комнатная квартира в строящемся доме (Корпус 1), срок сдачи: II-кв. 2027, общей площадью 34 кв.м., на 6 этаже. ЖК ''Тургенев'' на ул. Чеглецова, 25а представляет из себя два кирпичных здания высотой 9 этажей. Предлагаем к покупке первый корпус, состоящий из двух подъездов. В каждом запроектированы квартиры с продуманной планировкой от 34,8-57,7 квадратных метров. Фасады выполнены в стилизованных формах с использованием остекленных лоджий и архитектурной подсветкой. Высота 1 и 9 этажа - 3 метра. На первом этаже предусмотрены нежилые помещения с гибким функциональным назначением. ЖК ''Тургенев'' удачно расположен в тихом районе города и в то же время имеет отличную транспортную развязку, до проспекта Ленина и улицы Северо-Западной всего 500 метров. В шаговой доступности бассейн Аврора, Краевой стрелково-спортивный центр, тренажёрный зал, парк развлечений ''Солнечный Ветер'', а до Юбилейного парка, где расположен скейт-парк, велодорожки, красивые места отдыха и практически ручные белки всего 650 метров. Также эта локация отличается обилием образовательных учреждений от детских садов, школ до колледжей.
1/5
9 510 800 ₽
3-к, Промышленная, 10
Центральный район
62 м² · Этаж 4 из 23
Новостройка, 4 кв. 2029
Новый жилой комплекс ''Родные берега'' от застройщика ''Жилищная Инициатива'' расположен по адресу: Алтайский край, г. Барнаул, Центральный район , улица Промышленная, д. 10
1/5
13 428 470 ₽
1-к, Промышленная, 10
Центральный район
73 м² · Этаж 23 из 23
Новостройка, 4 кв. 2029
Новый жилой комплекс ''Родные берега'' от застройщика ''Жилищная Инициатива'' расположен по адресу: Алтайский край, г. Барнаул, Центральный район , улица Промышленная, д. 10
1/5
7 820 020 ₽
2-к, Промышленная, 10
Центральный район
49 м² · Этаж 3 из 23
Новостройка, 4 кв. 2029
Новый жилой комплекс ''Родные берега'' от застройщика ''Жилищная Инициатива'' расположен по адресу: Алтайский край, г. Барнаул, Центральный район , улица Промышленная, д. 10
1/5
7 025 130 ₽
1-к, Промышленная, 10
Центральный район
41 м² · Этаж 11 из 23
Новостройка, 4 кв. 2029
Новый жилой комплекс ''Родные берега'' от застройщика ''Жилищная Инициатива'' расположен по адресу: Алтайский край, г. Барнаул, Центральный район , улица Промышленная, д. 10
1/5
9 758 800 ₽
3-к, Промышленная, 10
Центральный район
62 м² · Этаж 17 из 23
Новостройка, 4 кв. 2029
Новый жилой комплекс ''Родные берега'' от застройщика ''Жилищная Инициатива'' расположен по адресу: Алтайский край, г. Барнаул, Центральный район , улица Промышленная, д. 10
1/5
6 826 710 ₽
1-к, Промышленная, 10
Центральный район
41 м² · Этаж 5 из 23
Новостройка, 4 кв. 2029
Новый жилой комплекс ''Родные берега'' от застройщика ''Жилищная Инициатива'' расположен по адресу: Алтайский край, г. Барнаул, Центральный район , улица Промышленная, д. 10
1/5
6 826 710 ₽
1-к, Промышленная, 10
Центральный район
41 м² · Этаж 3 из 23
Новостройка, 4 кв. 2029
Новый жилой комплекс ''Родные берега'' от застройщика ''Жилищная Инициатива'' расположен по адресу: Алтайский край, г. Барнаул, Центральный район , улица Промышленная, д. 10
1/5
6 859 930 ₽
1-к, Промышленная, 10
Центральный район
41 м² · Этаж 4 из 23
Новостройка, 4 кв. 2029
Новый жилой комплекс ''Родные берега'' от застройщика ''Жилищная Инициатива'' расположен по адресу: Алтайский край, г. Барнаул, Центральный район , улица Промышленная, д. 10
1/5
7 025 130 ₽
1-к, Промышленная, 10
Центральный район
41 м² · Этаж 11 из 23
Новостройка, 4 кв. 2029
Новый жилой комплекс ''Родные берега'' от застройщика ''Жилищная Инициатива'' расположен по адресу: Алтайский край, г. Барнаул, Центральный район , улица Промышленная, д.10
1/5
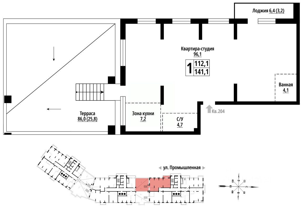
23 154 510 ₽
1-к, Промышленная, 10
Центральный район
141 м² · Этаж 23 из 23
Новостройка, 4 кв. 2029
Новый жилой комплекс ''Родные берега'' от застройщика ''Жилищная Инициатива'' расположен по адресу: Алтайский край, г. Барнаул, Центральный район , улица Промышленная, д. 10
1/5
7 289 100 ₽
1-к, Промышленная, 10
Центральный район
44 м² · Этаж 11 из 23
Новостройка, 4 кв. 2029
Новый жилой комплекс ''Родные берега'' от застройщика ''Жилищная Инициатива'' расположен по адресу: Алтайский край, г. Барнаул, Центральный район , улица Промышленная, д.10
1/5
6 279 870 ₽
1-к, Промышленная, 10
Центральный район
35 м² · Этаж 17 из 23
Новостройка, 4 кв. 2029
Новый жилой комплекс ''Родные берега'' от застройщика ''Жилищная Инициатива'' расположен по адресу: Алтайский край, г. Барнаул, Центральный район , улица Промышленная, д. 10
1/5
6 908 910 ₽
1-к, Промышленная, 10
Центральный район
41 м² · Этаж 10 из 23
Новостройка, 4 кв. 2029
Новый жилой комплекс ''Родные берега'' от застройщика ''Жилищная Инициатива'' расположен по адресу: Алтайский край, г. Барнаул, Центральный район , улица Промышленная, д.10
1/5
6 859 930 ₽
1-к, Промышленная, 10
Центральный район
41 м² · Этаж 3 из 23
Новостройка, 4 кв. 2029
Новый жилой комплекс ''Родные берега'' от застройщика ''Жилищная Инициатива'' расположен по адресу: Алтайский край, г. Барнаул, Центральный район , улица Промышленная, д. 10
1/5
8 785 360 ₽
2-к, Промышленная, 10
Центральный район
56 м² · Этаж 4 из 23
Новостройка, 4 кв. 2029
Новый жилой комплекс ''Родные берега'' от застройщика ''Жилищная Инициатива'' расположен по адресу: Алтайский край, г. Барнаул, Центральный район , улица Промышленная, д.10
1/5
7 025 130 ₽
1-к, Промышленная, 10
Центральный район
41 м² · Этаж 16 из 23
Новостройка, 4 кв. 2029
Новый жилой комплекс ''Родные берега'' от застройщика ''Жилищная Инициатива'' расположен по адресу: Алтайский край, г. Барнаул, Центральный район , улица Промышленная, д. 10
1/5
9 758 800 ₽
3-к, Промышленная, 10
Центральный район
62 м² · Этаж 20 из 23
Новостройка, 4 кв. 2029
Новый жилой комплекс ''Родные берега'' от застройщика ''Жилищная Инициатива'' расположен по адресу: Алтайский край, г. Барнаул, Центральный район , улица Промышленная, д.10
  • 5
  • 6
  • 7
  • 8
  1. Недвижимость в Барнауле
  2. Продажа
  3. Квартиры
  4. 4455 объявлений

Может быть полезно

Ипотека

Узнайте за 10 минут, какой кредит вам одобрят банки

Подбор риелтора

Риелтор поможет купить или продать любую недвижимость

Журнал

Как сделать септик своими руками: советы по выбору и установке Как сделать септик своими руками: советы по выбору и установке
Новостройка или вторичка: что сейчас дешевле и что лучше покупать Новостройка или вторичка: что сейчас дешевле и что лучше покупать
Как обустроить маленькую квартиру для комфортной жизни Как обустроить маленькую квартиру для комфортной жизни
Как получить лес от государства бесплатно или с большой скидкой Как получить лес от государства бесплатно или с большой скидкой
Как обновить старую мебель своими руками: инструкция Как обновить старую мебель своими руками: инструкция
Читать все статьи
Продажа квартир в Барнауле
  • по районам
  • Железнодорожный район
  • Индустриальный район
  • Ленинский район
  • Октябрьский район
  • Центральный район
По субъектам области
  • Павловский район
  • Барнаул муниципальное образование
  • с. Павловск
  • Бийск
  • Дорожник мкр
  • Барнаул
  • Бирюзовая Катунь тер.
  • ВРЗ мкр
  • Алтайский район
  • Белокуриха
  • Барнаул городской округ
  • Рубцовск
  • Южный рп
  • Южный рп
  • Новоалтайск
Похожий тип квартиры
  • 2-комнатные
  • Все квартиры
  • Свободные планировки
  • 5-комнатные

Некоторые материалы настоящего раздела могут содержать информацию, запрещенную для детей, не достигших шести лет.

Информация о возрастных ограничениях в отношении информационной продукции, подлежащая распространению на основании норм Федерального закона «О защите детей от информации, причиняющей вред их здоровью и развитию».

О компанииСправочный центрВакансии
© ООО «Н1.РУ»  Правила использования

Некоторые материалы настоящего раздела могут содержать информацию, запрещенную для детей, не достигших шести лет.

Информация о возрастных ограничениях в отношении информационной продукции, подлежащая распространению на основании норм Федерального закона «О защите детей от информации, причиняющей вред их здоровью и развитию».

Новостройки
Студии
Однокомнатные
Двухкомнатные
Трехкомнатные
Четырехкомнатные
Многокомнатные
Каталоги
Выделение цветом
Спецпредложение
Топ
Турбо
Вторичка
Однокомнатные
Комнаты
Студии
Коттеджи
Дома
Аренда недвижимости
Квартиры
Комнаты
Студии
Коттеджи
Дома
Города
Архангельск
Екатеринбург
Красноярск
Новосибирск
Омск
Пермь
Тюмень
Челябинск
Все города
Карта сайта
 Купите квартиру в Барнауле - 4 455 объявлений в каталоге жилой недвижимости на N1. Средняя цена продажи или покупки жилья составляет 12,5 млн ₽. Покупайте квартиры недорого на сайте N1.ru.