Дом, Берёзовка Показать на карте
Берёзовка
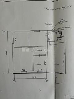
Код объекта: 1968388.Уникальное предложение для тех, кто ищет уютное место для жизни вдали от городской суеты! Готовность дома июнь 2026 годаДом из качественных материалов: блочная конструкция, деревянные перекрытия, кровля из профлиста. Высота потолков 2,9 метра создаёт ощущение простора. Общая площадь — 114,3 кв. м, из которых 39,9 кв. м — жилая площадь. Три комнаты (12,9 + 12,1 + 14,9 кв. м), просторная кухня (26,6 кв. м) и совмещённый санузел. Ремонт white box — заезжай и живи!На участке площадью 7,19 соток есть гараж. Подъезд к участку — грунтовка. Дом подключён ко всем необходимым коммуникациям: электричество, водоснабжение (скважина), канализация, газ. Отопление от индивидуального котла позволяет регулировать температуру и экономить на коммунальных платежах.Дом идеально подходит для круглогодичного проживания. Тишина, чистый воздух и спокойствие сельской жизни — всё это ждёт вас в Берёзовке. Всего 20 километров до города — и вы в центре событий.Позвоните нам прямо сейчас, чтобы узнать больше и записаться на просмотр! Мы гарантируем безопасную сделку и юридическую поддержку нашим клиентам. Поможем одобрить ипотеку с сниженной ставкой.
114 м2
1 этаж
- Показать контакты
- Добавить в избранное
114 м2
1 этаж
7 500 000
65 617 /м2
