В избранном
В избранное
Пожаловаться
Напечатать
Следить за ценой

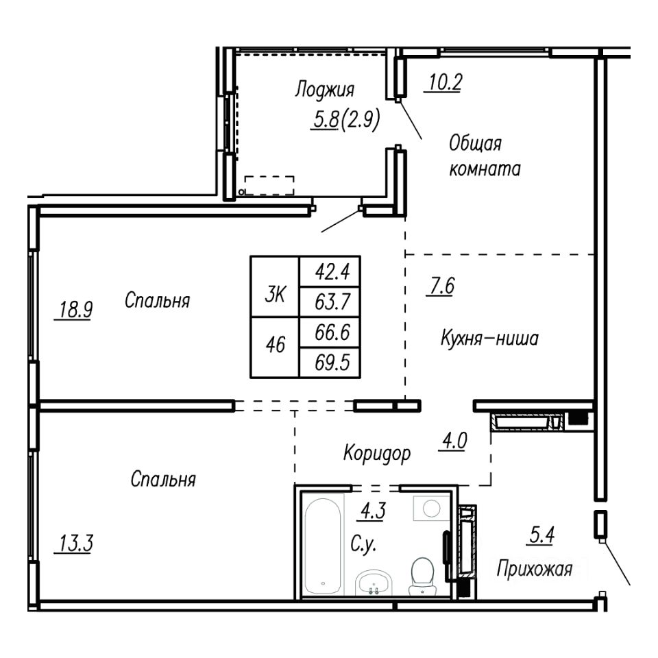
продам 3-к, Антона Петрова, 210б10 456 200 ₽

6 фев
Обн. вчера
2
157 000 ₽/м²
  • Чистая продажа