29 янв
Обн. 17 фев
Новостройка, 4 кв. 2027
Продам 1-к
Железнодорожный район, Центр
Барнаул
6 690 000 ₽187 921 ₽ за м²
Чистая продажа
Квартира
- Общая площадь35 м²
- Тип собственностидоговор долевого участия
Дом
- Срок сдачи4 кв. 2027
- Этаж2 из 16
- Материал домакирпич
Описание
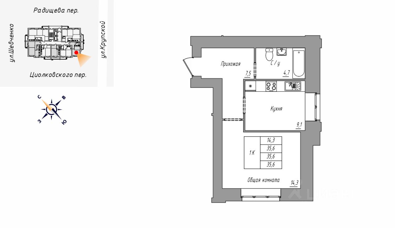
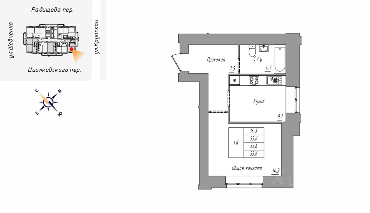
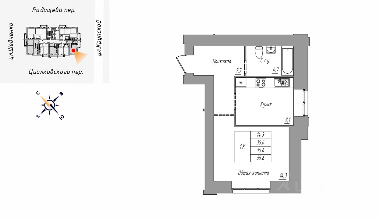
Продаётся 1-комнатная квартира в строящемся доме (Дом 1), срок сдачи: IV-кв. 2027, общей площадью 35.6 кв.м., на 2 этаже.
Контакты скрыты, объявление находится в архиве
Ипотечный калькулятор
Стоимость
₽
Первый взнос
₽
Срок кредита
лет
Процентная ставка
Проц. ставка
%
Ежемесячный платеж
50 252 ₽
Мин. доход
91 367 ₽
Сумма кредита
5 686 500 ₽
Один запрос в 8 банков
+2
Узнайте за 10 минут, какую сумму кредита вам одобрят банки




