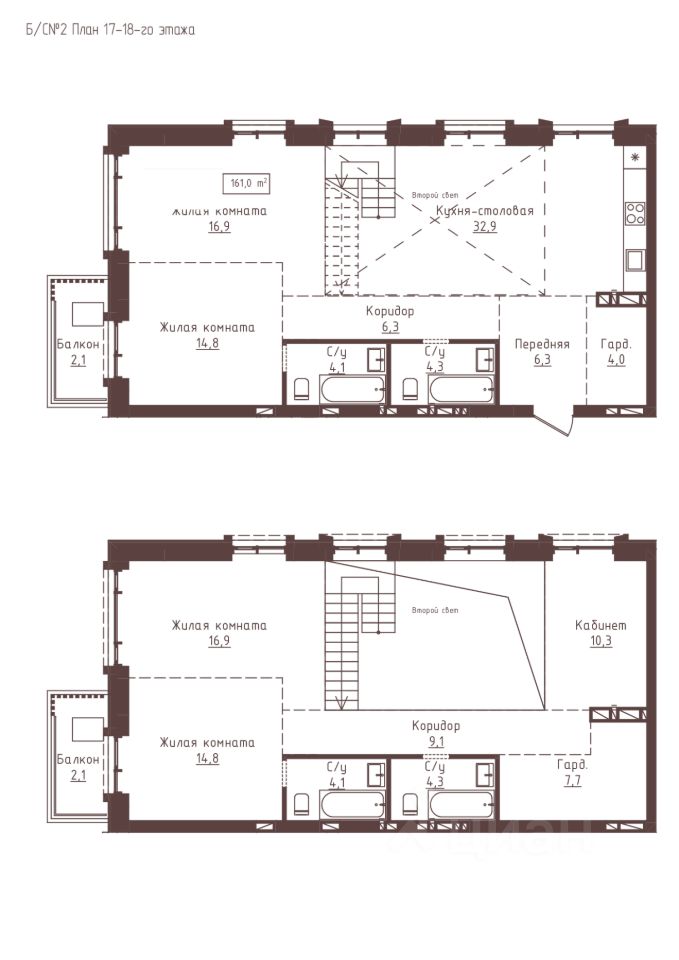
Продаётся 5-комнатная квартира в строящемся доме (Папанинцев, 155 (Блок-секция 1-2)), срок сдачи: III-кв. 2028, общей площадью 161 кв.м., на 18 этаже. Новый жилой комплекс ''Империал'' от группы компаний ''Авангард'' расположен по адресу: г. Барнаул, по ул. Папанинцев.