Если цена в объявлении изменится, мы сразу сообщим вам об этом на электронную почту.
Нажимая «Подписаться», вы соглашаетесь с правилами.
продам дом, переулок Кедровый32 990 000 ₽
10 дек
Дата публикации объявления
Обн. вчера
Дата обновления объявления
131 960 ₽/м²
Чистая продажа
Термин "Чистая продажа" означает, что в квартире никто не прописан или
есть куда выписаться и вывезти вещи. Это лучший вариант для покупателя.
Вероятность срыва сделки минимальна.
Этажей2
Площадь участка14 соток
Общая площадь250 м2
Материал домадерево
ЭлектричествоЕсть
Газоснабжениецентральное
Продам коттедж с земельным участком в г. Бийске в районе ''Лесная Поляна''. Расположен в живописном, экологически чистом месте в окружении леcа и pеки на окраине города.
О доме: - 250 кв.м. (размер дома:16 м х 12 м. (по крайним точкам), - высота потолков 2,9 метра, - предчиcтовaя отделка, - этажность - 2, - крыша утеплена, кровля: двухслойная гибкая черепица SНINGLАS коллекции ''Джаз'' от Технониколь - материал стен брус зимней сосны 18 х 20 (брус обработан антисептиком), снаружи утеплён минеральной ватой Технониколь по 10 см. в два слоя. Обтянут гидро-ветроизоляцией, обшит ОСБ плитой и облагорожен фасадным кирпичом НАUВЕRК, - окна пластиковые кашированные, профиль RЕНАU Dеlight Dеsign - шириной 70 мм.
Продам коттедж с земельным участком в г. Бийске в районе ''Лесная Поляна''. Расположен в живописном, экологически чистом месте в окружении леcа и pеки на окраине города.
О доме: - 250 кв.м. (размер дома:16 м х 12 м. (по крайним точкам), - высота потолков 2,9 метра, - предчиcтовaя отделка, - этажность - 2, - крыша утеплена, кровля: двухслойная гибкая черепица SНINGLАS коллекции ''Джаз'' от Технониколь - материал стен брус зимней сосны 18 х 20 (брус обработан антисептиком), снаружи утеплён минеральной ватой Технониколь по 10 см. в два слоя. Обтянут гидро-ветроизоляцией, обшит ОСБ плитой и облагорожен фасадным кирпичом НАUВЕRК, - окна пластиковые кашированные, профиль RЕНАU Dеlight Dеsign - шириной 70 мм. и 5 воздушных камер, стеклопакеты - двухкамерные (3 стекла) шириной 40 мм., энергосберегающие с защитным напылением от УФ -лучей и морозостойкость до - 60 градусов, - отопление газовое (отапливается и дом и баня газовым котлом ВОSСН Gаz 6000 W), - электрика (медь) протянута по всему дому и каждая комната запитана по отдельности, отдельно выведен щиток на 380Вт, - Вода скважина, насос 5 куб/час (нитка холодной и горячей воды протянута по всему дому), - погреб, - два вместительных гаража (под одной крышей с домом (гаражные ворота АLUТЕСН с автоматическим приводом и тиснением Wооdgrаin (срез дерева), - проведен интернет (провайдер Сибирские сети) и уличное видеонаблюдение по всему периметру дома.
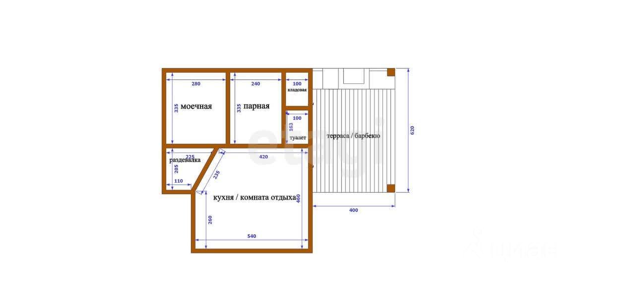
На земельном участке расположены: - 14 соток земли, - банный комплекс с зоной барбекю и террасой, общая площадь 80 м2. (парная, моечная, раздевалка - внутренняя отделка кедром.
Инфраструктура: - магазины различной направленности, - аптеки, - до школы 1,5 км., - детский сад.
Агентство недвижимости ''Этажи'' — Ваш надежный партнер в мире недвижимости! - Гарантия безопасности сделки. Защитим интересы клиента в спорных ситуациях - Найдем для вас выгодные условия по ипотеке - Поможем зарегистрировать сделку, даже если продавец и покупатель находятся в разных городах - Полное сопровождение процесса сделки нашими специалистами - 96%* наших клиентов готовы рекомендовать своего