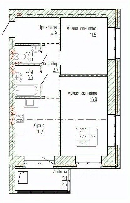
Продаётся 2-комнатная квартира в строящемся доме (Дом 1), срок сдачи: II-кв. 2027, общей площадью 54.9 кв.м., на 3 этаже. Жилой дом от специализированного застройщика ''Жемчужина'' располагается в г. Новоалтайске на ул. Титова, 6. Кирпичный дом состоит из 3-х блок-секций (БС 1 - 9 этажей, БС 2 - 14 этажей, БС 3 - 9 этажей), в каждой блок-секции имеется два входа и один лифт. В новостройке 225 квартир площадью от 31 кв.м. до 80 кв.м., также предусмотрены помещения кладовых в подвальной части дома. Сдача дома - 2 кв 2027 г.
В шаговой доступности находятся школы, детские сады, площадки для игр, гаражные, торговые помещения и остановки общественного транспорта.


