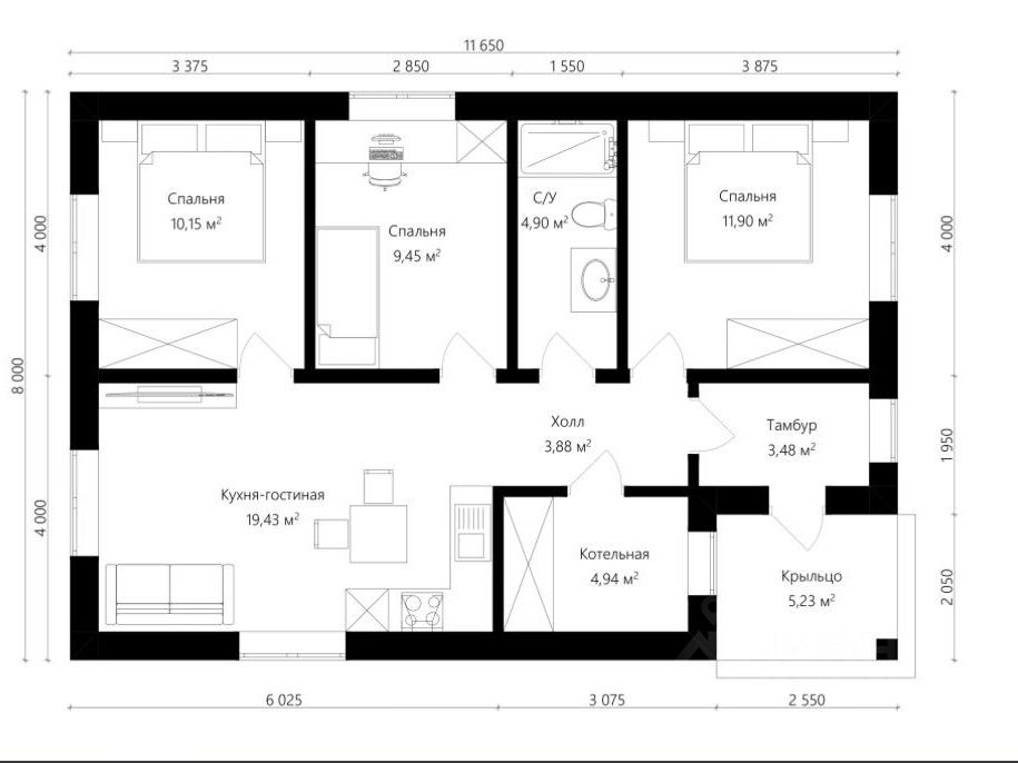
Свой дом, это решение сильных, независимых людей, твой дом- твои правила! Жить в своем доме, хорошая история, но для получения положительного результата, без ошибок в стройке, без конфликтов и судов с подрядчиком- это к НАМ!
Мы обязательно предложим наиболее подходящий вариант проекта и комплектацию, учитывая бюджет, особенности и хотелки каждого. Работаем по всему Алтайскому краю. Поможем выбрать и оформить участок, выбрать или разработать проект дома, согласовать ипотечный кредит, заключить договор строительного подряда, юридическое сопровождение на весь период строительства, технический надзор на весь период строительства. Готовы ответить на все ваши вопросы и провести бесплатные консультации.





