Если цена в объявлении изменится, мы сразу сообщим вам об этом на электронную почту.
Нажимая «Подписаться», вы соглашаетесь с правилами.
продам дом, Рощино мкр Молодежная7 900 000 ₽
16 окт
Дата публикации объявления
Обн. вчера
Дата обновления объявления
3
Количество просмотров (+ просмотры за сегодня)
91 860 ₽/м²
Чистая продажа
Термин "Чистая продажа" означает, что в квартире никто не прописан или
есть куда выписаться и вывезти вещи. Это лучший вариант для покупателя.
Вероятность срыва сделки минимальна.
Этажей1
Площадь участка8,15 соток
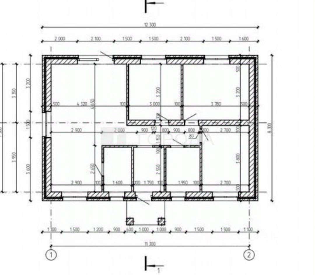
Общая площадь86 м2
ЭлектричествоЕсть
Газоснабжениецентральное
Код объекта: 1858721. Уникальное предложение для тех, кто ищет комфортное жильё за городом! Продаётся современный дом в селе Фирсово, Первомайский район, Алтайский край. Дом построен в 2025 году из качественных материалов — газобетонных блоков, что обеспечивает отличную тепло- и звукоизоляцию.
Общая площадь дома — 86 кв. м, жилая — 26,4 кв. м. Дом имеет две комнаты, кухня площадью 38,6 кв. м позволяет реализовать самые смелые дизайнерские решения. Высота потолков 2,9 м создаёт ощущение простора. Дом идеально подходит для круглогодичного проживания благодаря индивидуальному котлу отопления и центральному водоснабжению.
Участок площадью 9,15 соток с личным подсобным хозяйством обеспечит вам возможность для отдыха и садоводства.
Код объекта: 1858721. Уникальное предложение для тех, кто ищет комфортное жильё за городом! Продаётся современный дом в селе Фирсово, Первомайский район, Алтайский край. Дом построен в 2025 году из качественных материалов — газобетонных блоков, что обеспечивает отличную тепло- и звукоизоляцию.
Общая площадь дома — 86 кв. м, жилая — 26,4 кв. м. Дом имеет две комнаты, кухня площадью 38,6 кв. м позволяет реализовать самые смелые дизайнерские решения. Высота потолков 2,9 м создаёт ощущение простора. Дом идеально подходит для круглогодичного проживания благодаря индивидуальному котлу отопления и центральному водоснабжению.
Участок площадью 9,15 соток с личным подсобным хозяйством обеспечит вам возможность для отдыха и садоводства. Подъезд к участку засыпан щебнем, что гарантирует удобный доступ в любое время года.
Ремонт white box даёт возможность новым владельцам воплотить свои дизайнерские идеи. Это прекрасный выбор для тех, кто хочет создать уютное и уникальное пространство под себя.
Не упустите шанс стать владельцем этого прекрасного дома! Звоните нам прямо сейчас, чтобы узнать больше и записаться на просмотр.
Мы гарантируем безопасную сделку и юридическую поддержку нашим клиентам. Поможем одобрить ипотеку с сниженной ставкой.