В избранном
В избранное
Пожаловаться
Напечатать
Следить за ценой

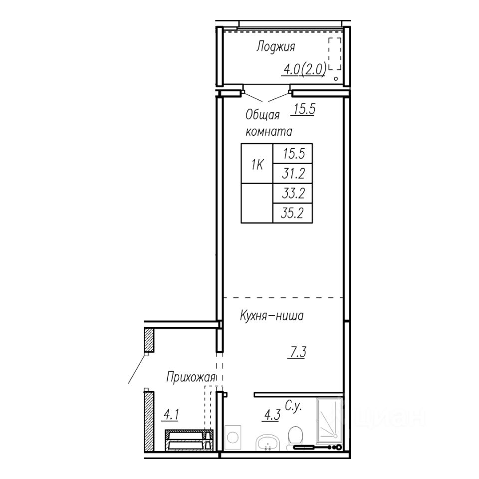
продам 1-к, Антона Петрова, 210б5 644 000 ₽

16 окт
Обн. сегодня
1
170 000 ₽/м²
  • Чистая продажа