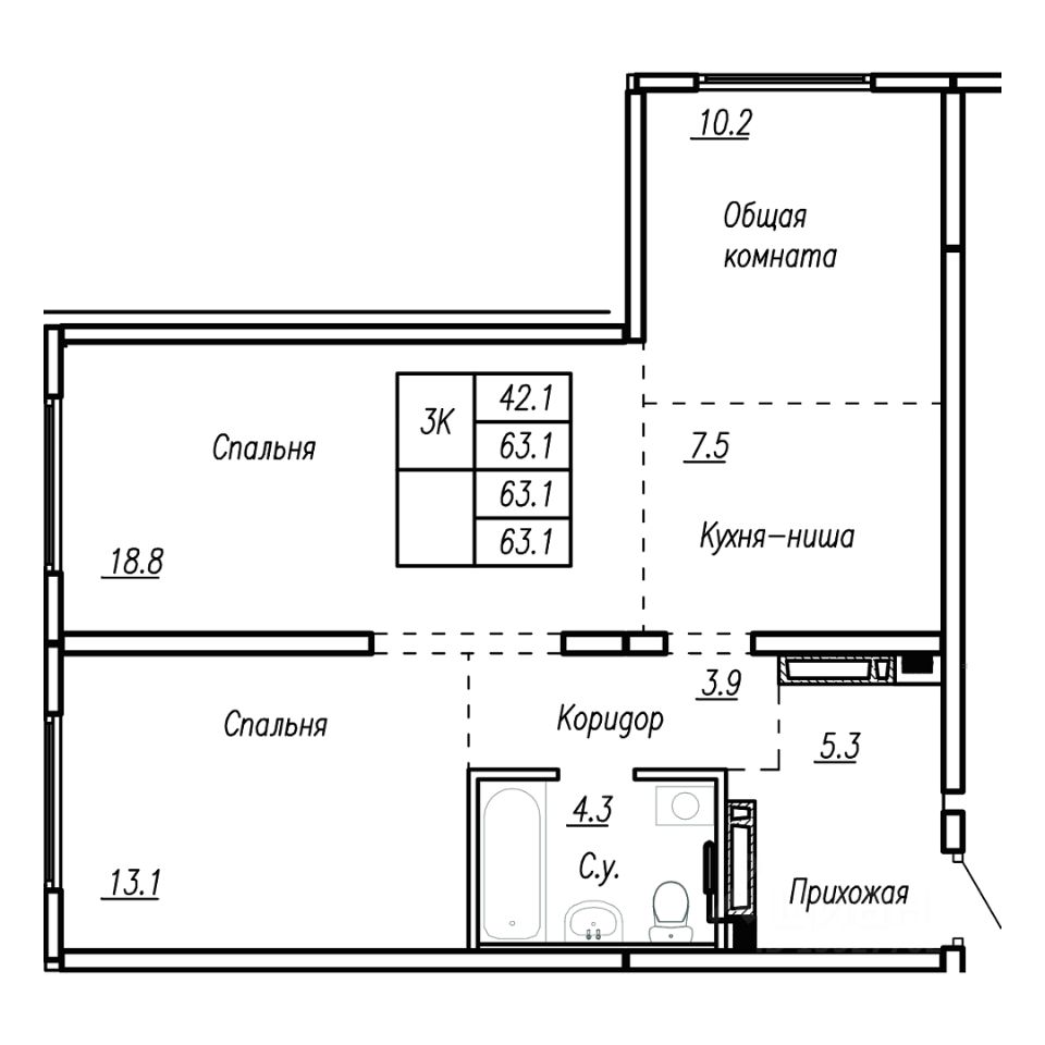
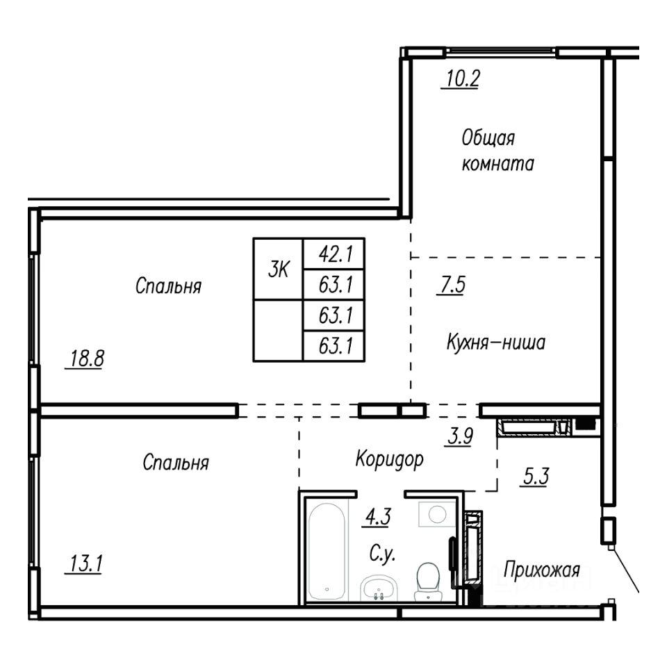
Продаётся 3-комнатная квартира в строящемся доме (Корпус 1), срок сдачи: IV-кв. 2027, общей площадью 63.1 кв.м., на 1 этаже. Жилой комплекс с богатой инфраструктурой района, расположенный в непосредственной близости к парку Целинников на улице Антона Петрова.