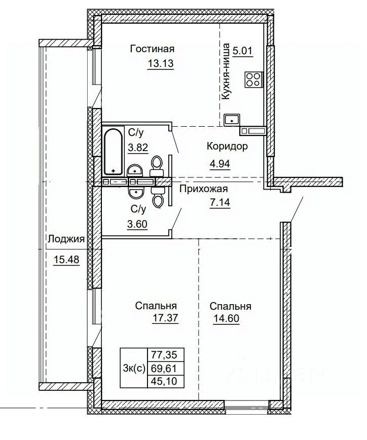
Продаётся 3-комнатная квартира в строящемся доме (Дом 1), срок сдачи: IV-кв. 2027, общей площадью 77.35 кв.м., на 3 этаже. 9 этажный многоквартирный жилой дом с помещениями общественного назначения и подземной автостоянкой, расположенный на пересечение с пр. Комсомольским и ул. Никитина.
Гигантские квартиры и паркинг
В ЖК будет 57 квартир площадью от 28 до 255 квадратных метров. Всего дом рассчитан на проживание 95 человек. На первом этаже здания будут офисные помещения и помещения для досуга. в ЖК предусмотрели 50 машино-мест: 37 - в подземном паркинге, еще 13 - на территории участка. Здание возведут в тон окружающей застройке.


