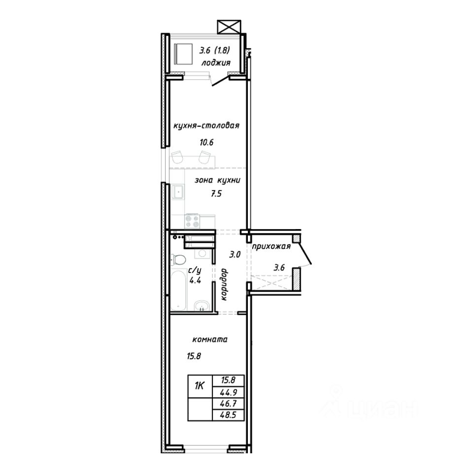
Продаётся 1-комнатная квартира в строящемся доме (Дом 1), срок сдачи: I-кв. 2027, общей площадью 46.7 кв.м., на 15 этаже. Новый жилой комплекс ''Колос'' от Специализированного застройщика ''Восход'' расположен по адресу: г. Барнаул, по ул. Интернациональная.