Если цена в объявлении изменится, мы сразу сообщим вам об этом на электронную почту.
Нажимая «Подписаться», вы соглашаетесь с правилами.
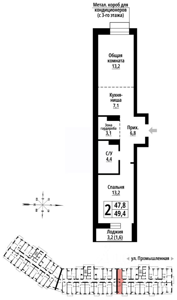
продам 2-к, Промышленная, 108 215 220 ₽
18 янв 2025
Дата публикации объявления
Обн. сегодня
Дата обновления объявления
4
Количество просмотров (+ просмотры за сегодня)
Спецпредложение
Турбо x8
167 658 ₽/м²
Чистая продажа
Термин "Чистая продажа" означает, что в квартире никто не прописан или
есть куда выписаться и вывезти вещи. Это лучший вариант для покупателя.
Вероятность срыва сделки минимальна.
Новый жилой комплекс ''Родные берега'' от застройщика ''Жилищная Инициатива'' расположен по адресу: Алтайский край, г. Барнаул, Центральный район , улица Промышленная, д.10