3-к, Заринск Показать на карте
Заринск
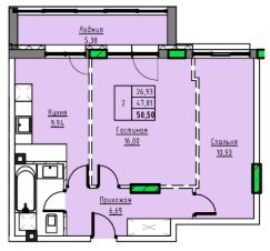
Продаётся 3-комнатная квартира в строящемся доме (Дом 1), срок сдачи: II-кв. 2029, общей площадью 64.1 кв.м., на 4 этаже. 10-ти этажный жилой дом в г. Заринске по адресу пр-т. Строителей, 29в. Проектом предлагается 3-х подъездный, 10-ти этажный жилой дом с встроенными на первом этаже помещениями общественного назначения. Исходя из ориентации дома входы в подъезды предусмотрены со стороны двора, тогда как в нежилые помещения - со стороны пр-т. Строителей. Вокруг здания предусматривается круговой проезд для автомобильного транспорта. Парковки для постоянного, временного хранения автомобилей, а также парковки для нежилых помещений предусмотрены, при этом согласно нормативам градостроительного проектирования Алтайского края от 29.12.2022 N 537, машино-мест может располагаться на прилегающей территории более 90 штук. Детские, спортивные площадки запроектированы с учетом нормативных расстояний от жилья и парковок. В жилом доме предусмотрено 222 квартир в том числе: Студии - 841-комн. - 482-х комн. - 543-х комн. - 304-х комн. - 6Имеется возможность объединения квартир для увеличения площади. Высота первого этажа - 3,6 м, жилых этажей - 3 м. В подвале предусмотрены кладовые для хранения негорючих вещей жильцов. В каждом подъезде имеется лестничная клетка и два лифта - пассажирский грузоподъемностью 400 кг и грузопассажирский грузоподъемностью 630 кг. Практически каждая квартира имеет выход на просторную застекленную лоджию площадью 6-9 кв.м. Все окна увеличенной высоты, что обеспечивает максимальное дневное освещение квартир. Часть квартир дополнительно оборудована мастер спальнями и гардеробными. Конструктивная схема монолитный железобетонный каркас с заполнением кирпичом и газобетоном с утеплителем. Облицовка 1-2 этажей клинкерным кирпичом. Выше штукатурка по стене. Окна - из металлопластика. Витражи 1-го этажа, остекления балконов - алюминиевые. Прилегающая территория к дому комплексно благоустраивается с асфальтированием проездов, озеленением и тротуарной плиткой. Площадки для игр детей и занятия спортом укомплектовываются элементами заводского изготовления. Жилой дом после строительства украсит центральную часть г. Заринска.
64 м2
4 / 10 этаж
Кирпич - монолит
- Показать контакты
- Добавить в избранное
64 м2
4 / 10 этаж
Кирпич - монолит
7 051 000
110 000 /м2
Новостройка,
II-2029
II-2029
