2-к, Короленко, 86 Показать на карте
Центральный район, Центр
Барнаул
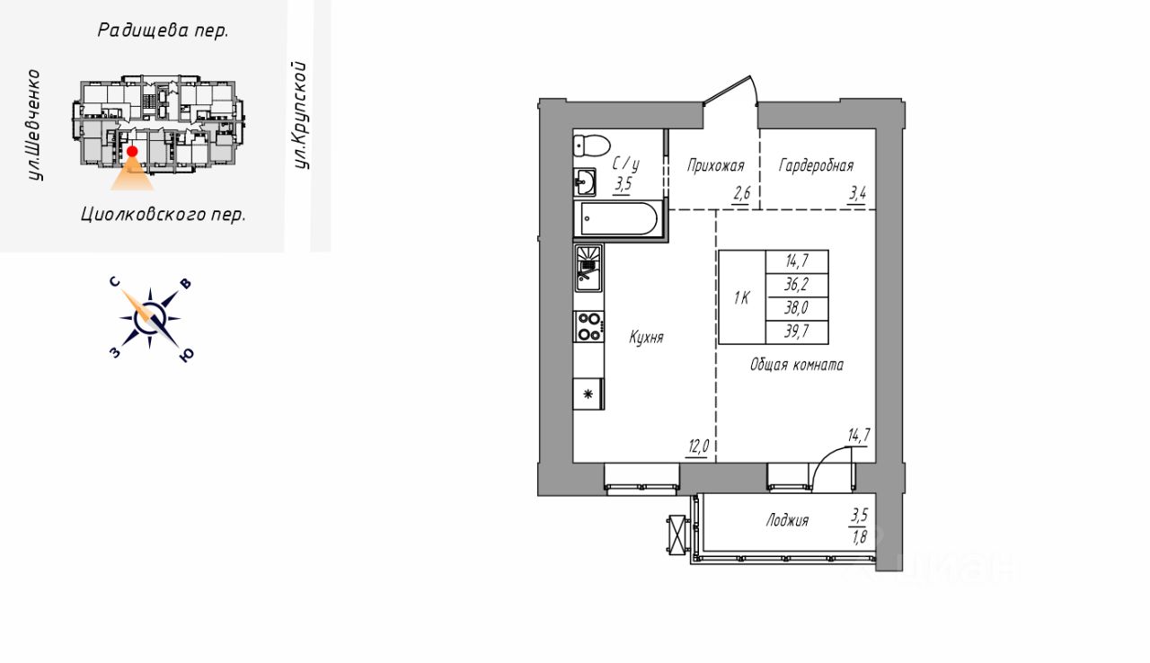
Эксклюзивное предложение: квартира в новом доме повышенной комфортности в самом центре города!Дом введен в эксплуатацию в январе 2026 года — ключи уже на руках! Получите ключи в день сделки и начните новую главу жизни в сердце города.Представляем отличную квартиру с продуманной планировкой:-просторная функциональная гостиная с лоджией — идеальное место для отдыха и приёма гостей,-уютная спальня с большим окном, наполняющим пространство светом,-улучшенная штукатурка стен и цементнопесчаная стяжка пола — основа для реализации любого дизайнерского решения,-горизонтальная разводка системы отопления и счётчики на тепло — экономия ваших ресурсов.Инфраструктура комплекса:-подземная парковка — забудьте о поиске места для автомобиля,-кладовая на подземной парковке (доступна за отдельную плату) — удобно хранить сезонные вещи, шины и прочее,-детская и спортивная площадки во дворе — активный отдых рядом с домом.Цена значительно ниже, чем у застройщика! Возможен торг.Не упустите шанс стать владельцем квартиры мечты — звоните прямо сейчас! Код пользователя: 203183Номер в базе: 12508649
50 м2
3 / 10 этаж
Кирпич - монолит
- Показать контакты
- Добавить в избранное
50 м2
3 / 10 этаж
Кирпич - монолит
7 750 000
155 000 /м2
