2-к, Анатолия, 35а Показать на карте
Центральный район, Центр
Барнаул
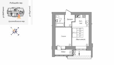
Код объекта: 1827115.Светлая двухкомнатная квартира в новом доме в центре города.Расположение:самый центр города, но в тихом и спокойной районе. Идеальный баланс - все преимущества центральной жизни без шума и суеты.О доме и районе:Новый дом 2013 года постройки, современная планировка и материалы (перекрытия: железобетонные плиты)Развитая инфраструктура в шаговой доступности университеты, супермаркеты, фитнес-клуб, кафе, банки, поликлинники, салоны красоты и все необходимоеОтличная транспортная доступность остановка общественного транспорта есть прямо у дома (6 маршрут) и в шаговой доступности, можно уехать в любую часть городаКонсьерж в подъездеПарковка большое количество мест наземной парковки, также можно приобрести парковочное подземное место в соседнем домеКладовые в каждом подъезде возможно приобрестиО квартире: Общая площадь 53.7 кв.мСостояние косметический ремонт, можно заезжать и делать по своему вкусу или жить уже сейчасСанузел совмещенныйВсе окна выходят на одну сторону (ул.Анатолия)В каждой комнате - кондиционер, в ванной комнате - водонагревательБалкона нетКоммуникации и особенности: Лифты в каждом подъездеОхраняемая территория, консьержИдеально для семьи, пары, студента или как инвестиция в недвижимость в престижном районе!Звоните, чтобы назначить просмотр и оценить все преимущества!
53 м2
11 / 16 этаж
Кирпич
- Показать контакты
- Добавить в избранное
53 м2
11 / 16 этаж
Кирпич
8 200 000
152 700 /м2
