Торговые площади
Профинтерна, 8а Показать на карте
Профинтерна, 8а Показать на карте
Железнодорожный район, Центр
Барнаул
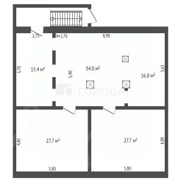
Код объекта: 1370253.Уникальное предложение для вашего бизнеса!!! Продам торговое, офисное помещение на первой линии, под любую коммерческую деятельность. Общая площадь - 288 м2. Первый этаж - 168 м2. Подвал - 120 м2. Помещение просторное, светлое, с большим торговым залом, с двумя кабинетами, с раздельным санузлом. Два отдельных входа с фасада здания. Со стороны двора изолированный от подъезда запасной вход и вход в подвальное помещение. Технические параметры:- электричество -9,5 кВт (разрешение на 50 кВт предодобрено),- трехфазовый провод для холодильного оборудования,- установлены счетчики на горячую и холодную воду, - собственный теплоузел (отдельно от дома),- низкие коммунальные платежи. Парковка доступна для любых видов транспорта. Ранее помещение использовалось под продуктовый магазин.В 2028 году планируется капитальный ремонт здания.Широко развита социальная инфраструктура.Собственник физическое лицо.Звоните! Смотрите! Покупайте! Номер в базе: 11191667. Код пользователя: 156094. Район: Железнодорожный
168 м2
- Показать контакты
- Добавить в избранное
168 м2
12 500 000
74 405 /м2
