2-к, Ударника, 25 Показать на карте
Старый центр
Новоалтайск
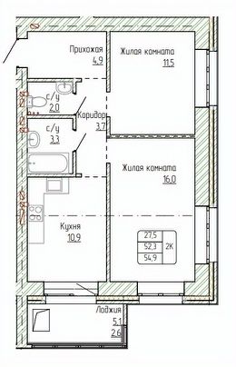
Продается уютная 2-комнатная квартира в Новоалтайске на улице Ударника, 25. Общая площадь — 42.7 кв. м, расположена на 3 этаже 3-этажного кирпичного дома, построенного в 1960 году. Высота потолков — 2.5 метра, что создает комфортное пространство для проживания.В квартире есть косметический ремонт, который позволяет вам сразу же заехать и жить без дополнительных хлопот. Окна выходят во двор, обеспечивая тишину и уединение. Планировка включает в себя совмещенный санузел, небольшой балкон для вечернего отдыха, просторную кладовую с встроенными шкафами. Кухня площадью 6 кв. м станет уютным местом для семейных ужинов.Дом кирпичный, что гарантирует долговечность и хорошую тепло- и звукоизоляцию. Наземная парковка позволяет без проблем оставить автомобиль рядом с домом. Дом находится в ухоженном состоянии, что придает дополнительный комфорт проживанию.Район отлично подходит для семей с детьми: поблизости расположены школы, детские сады и клиники. Кроме того, в шаговой доступности находятся магазины, что облегчает ежедневные покупки.Квартира продается по договору купли-продажи. Мск не использовался. Возможна ипотека, что делает покупку более доступной. Юридически чистая сделка, без обременений и ограничений.Приглашаем вас на просмотр, чтобы убедиться в достоинствах этой квартиры лично. Звоните и записывайтесь на удобное для вас время!
42 м2
3 / 3 этаж
Кирпич
- Показать контакты
- Добавить в избранное
42 м2
3 / 3 этаж
Кирпич
3 150 000
73 770 /м2
