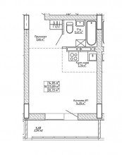
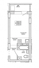
Описание
Современная, теплая конструкция с кирпичной облицовкой, несущий монолитный каркас, заполненный газобетонными блоками с повышенными показателями по теплопроводности. В доме предусмотрено восемь жилых этажей, два коммерческих этажа, а так же подземная парковка.
Застройщиком выполнится благоустройство придомовой территории: детские площадки, зоны отдыха. Предусмотрено место для консьержа, колясочной. В шаговой доступности расположены крупнейшие ВУЗы края, престижные школы, детские сады и торгово-развлекательные центры.
Информация об объекте получена исключительно из открытых источников. Подробнее
Администрация сайта N1.ru не несет ответственности за достоверность информации. Данные на сайте N1.ru регулярно обновляются. Информация, представленная на сайте N1.ru, может использоваться только частными лицами и только в информационных целях. Администрация сайта не несет ответственности за ущерб, понесенный в результате использования представленной на сайте информации. Для получения безусловно достоверной информации необходимо использовать непосредственно первоисточник информации. Исключительные и неисключительные права на результаты интеллектуальной деятельности принадлежат их авторам или иным правообладателям. Если Вы заметили какое-либо нарушение исключительных прав, недостоверность информации, обратитесь к администрации сайта N1.ru.